Toggle navigation
(+356) 2164 9500
(+356) 9998 6779
info@sensaramalta.com
Head Office - Sensara Malta
Triq Santa Marija, Safi
09.00 to 19.00 hrs
Monday to Saturday
Home
Properties
Sales
Rentals
Foreign
About us
Services
Contacts
Send your request
Previous
Next
2,048,000 €
CLICK HERE for DETAILED PHOTOS
St Julian's - Seafront Luxurious Apartment + Views
3+ bedroom apartment for sale • San Giljan
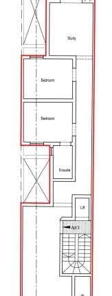
Laid in a prime area of St Julian's, enjoying impeccable direct sea views, situated on the 7th floor, served with a lift, and consists of approximately 220 sq m.
This luxurious apartment is one of a kind as it enjoys a massive open-plan formal sitting overlooking its front terrace, catching breathtaking views, a kitchen, and a dining room. A massive bathroom with a terrace compliments this area. While a small, wide corridor leads to its 3 double bedrooms, of which one main has an ensuite.
The property has been finished for personal use; it's in mint condition, although it was finished 20 years ago, and enjoys a traditional, classic ambience.
Complimenting this property is a large 1 car space.
Freehold.
Rooms and Features
Code
V014307
Locality
San Giljan
Property type
3+ bedroom apartment
Price
2,048,000 €
Locals
1
Bedrooms
3
Bathrooms
2
Sqm
220
Garages
1
Terraces
2
Floor
7
Energetic class
Not applicable
Property Conditions
Perfect Conditions
Accessories:
Air Conditioning
Photos • Floorplans • Video
Photos
Options
Print Property sheet
Send property sheet by mail
Schedule a visit
RealEstate Brokers
Hughes Jeffrey
+356 9980 0004
+356 9998 6779
+356 9998 6775
hughes@sensaramalta.com
Information request
Name *
Phone *
E-mail *
Request Details *
I authorize the processing of my personal data according Regolamento UE n. 679/2016 -
Privacy Policy
I authorize the processing of data for marketing purposes, promotional activities, commercial offers and market surveys.
Send
Share on
We also recommend
for Sale
Attard - 230sqm 3 Bedroom Highly Funrished Apartment + Yard + 2 Car Garage
565,000 €
for Sale
Fgura - Squarish 3 Double Bedroom Apartment
282,000 €
for Sale
Ta Sannat Gozo - 4 Bedroom Furnished Apartment + 3 Yards
297,000 €
Keep default settings X
Use of cookies
This site uses cookies. Our (own) cookies and those of our Partners (third party cookies) are used to offer you a unique experience with us. For this reason, together with our partners, we collect and process non-sensitive information (such as the identifier of your device or the pages you visit).
At any time you can delete, modify or verify the information you share in
Cookie preference
or in our
Cookie Policy
and
Privacy Policy
.
Necessary
Functional
Profiling
Analytics
Accept all
Decline all
Accept selected
Cookie preference