Toggle navigation
(+356) 2164 9500
(+356) 9998 6779
info@sensaramalta.com
Head Office - Sensara Malta
Triq Santa Marija, Safi
09.00 to 19.00 hrs
Monday to Saturday
Home
Properties
Sales
Rentals
Foreign
About us
Services
Contacts
Send your request
Previous
Next
1,229,000 €
CLICK HERE for DETAILED PHOTOS
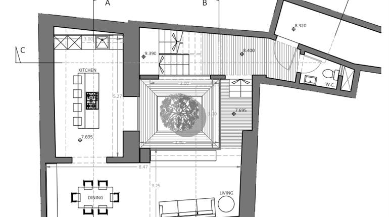
Zebbug - Massive HOC + Space For Pool + Garage
House of Character for sale • Zebbug
Hard to come by this double-fronted property which can be split into two separate properties, space for a pool, and a large street-level garage.
Situated in a UCA area, enjoying two separate entrances of which one comprises a typical hallway, side formal sitting, formal dining, a separate kitchen/breakfast, bathroom, and back yard on ground floor level. A granite stairway leads to its 1st floor where one finds large three bedrooms and its own roof with airspace. A large 4-car street-level garage leads to the older part of this property where one finds several rooms rich in its original features, two well-sized yards, and an arched mill room. It comes with full ownership of airspace and with the possibility to develop more rooms.
This massive property must be seen to be appreciated and visualize all its potential.
Freehold.
Rooms and Features
Code
V017619
Locality
Zebbug
Property type
House of Character
Price
1,229,000 €
Locals
1
Sqm
500
Energetic class
Not applicable
Property Conditions
Rustic
Photos • Floorplans • Video
Photos
Options
Print Property sheet
Send property sheet by mail
Schedule a visit
RealEstate Brokers
Vella Ludric
+356 7909 1346
+356 9998 6779
+356 9998 6775
ludric@sensaramalta.com
Information request
Name *
Phone *
E-mail *
Request Details *
I authorize the processing of my personal data according Regolamento UE n. 679/2016 -
Privacy Policy
I authorize the processing of data for marketing purposes, promotional activities, commercial offers and market surveys.
Send
Share on
We also recommend
for Sale
Qormi - 3 Bedroom House of Character + Central Courtyard
563,000 €
for Sale
Qrendi - 795sqm House of Character + Massive Garden+ Garage
2,560,000 €
for Sale
Zejtun - 4 Bedroom Unconverted House Of Character + Pool
410,000 €
Keep default settings X
Use of cookies
This site uses cookies. Our (own) cookies and those of our Partners (third party cookies) are used to offer you a unique experience with us. For this reason, together with our partners, we collect and process non-sensitive information (such as the identifier of your device or the pages you visit).
At any time you can delete, modify or verify the information you share in
Cookie preference
or in our
Cookie Policy
and
Privacy Policy
.
Necessary
Functional
Profiling
Analytics
Accept all
Decline all
Accept selected
Cookie preference