Toggle navigation
(+356) 2164 9500
(+356) 9998 6779
info@sensaramalta.com
Head Office - Sensara Malta
Triq Santa Marija, Safi
09.00 to 19.00 hrs
Monday to Saturday
Home
Properties
Sales
Rentals
Foreign
About us
Services
Contacts
Send your request
Previous
Next
405,500 €
CLICK HERE for DETAILED PHOTOS
Naxxar (Sghajtar) Ground Floor Maisonette + Views
Maisonette for sale • Naxxar
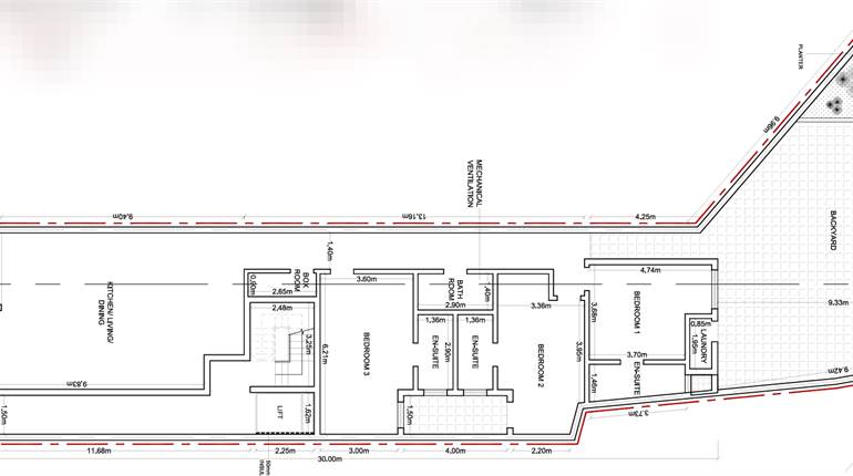
Ready Built Sghajtar area, in a small block of only 5 units, comes this 3 bedroom Ground Floor Maisonette with total area of 139.4sqm. Maisonette consists of an open plan Kitchen/Living/Dining, 3 bedrooms main with ensuite, main bathroom and large backyard.
Property is to be sold finished excluding bathrooms and façade is going to be highly finished with Travertine and Marble.
Interior area 108.7sqm and Exterior area 30.7sqm.
Freehold
Optional car spaces are available at 42K.
Completion date October 25.
Rooms and Features
Code
V018258
Locality
Naxxar
Property type
Maisonette
Price
405,500 €
Locals
6
Bedrooms
3
Bathrooms
2
Sqm
139
Terraces
1
Energetic class
Not applicable
Photos • Floorplans • Video
Photos
Options
Print Property sheet
Send property sheet by mail
Schedule a visit
RealEstate Brokers
Vella Ludric
+356 7909 1346
+356 9998 6779
+356 9998 6775
ludric@sensaramalta.com
Information request
Name *
Phone *
E-mail *
Request Details *
I authorize the processing of my personal data according Regolamento UE n. 679/2016 -
Privacy Policy
I authorize the processing of data for marketing purposes, promotional activities, commercial offers and market surveys.
Send
Share on
We also recommend
for Sale
Tarxien - Solitary 3 Bedroom Maisonette + Roof
461,000 €
for Sale
Iklin - 290sqm 3 Bedroom Fully Finished Elevated Maisonette + Yard + Street Level 2 Car Garage
605,000 €
for Sale
Qormi - 3 Bedroom Furnished Ground Floor Maisonette
502,000 €
Keep default settings X
Use of cookies
This site uses cookies. Our (own) cookies and those of our Partners (third party cookies) are used to offer you a unique experience with us. For this reason, together with our partners, we collect and process non-sensitive information (such as the identifier of your device or the pages you visit).
At any time you can delete, modify or verify the information you share in
Cookie preference
or in our
Cookie Policy
and
Privacy Policy
.
Necessary
Functional
Profiling
Analytics
Accept all
Decline all
Accept selected
Cookie preference