Toggle navigation
(+356) 2164 9500
(+356) 9998 6779
info@sensaramalta.com
Head Office - Sensara Malta
Triq Santa Marija, Safi
09.00 to 19.00 hrs
Monday to Saturday
Home
Properties
Sales
Rentals
Foreign
About us
Services
Contacts
Send your request
Previous
Next
430,000 €
CLICK HERE for DETAILED PHOTOS
Mosta - Already Built 3 Bedroom Finished Elevated Maisonette + Backyard
Maisonette for sale • Mosta
The new project in the Mosta tal Blata l- Gholja area will consist of an ultra-smart block of 5 elevated maisonettes, 15 apartments, and 3 penthouses.
All units are being offered highly finished without bathrooms and internal doors.
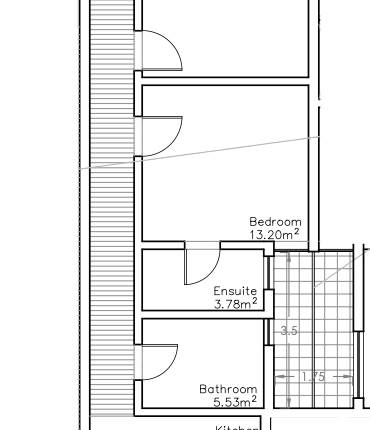
The layout comprises of a front longish open plan, master bathroom, 3 double bedrooms of which main is served with ensiut and back yard.
Optional interconnected garages are available and starting from 45k
Freehold
Rooms and Features
Code
V019593
Locality
Mosta
Property type
Maisonette
Price
430,000 €
Locals
1
Bedrooms
3
Bathrooms
2
Sqm
161
Terraces
2
Energetic class
Not applicable
Accessories:
Double Glazing
Photos • Floorplans • Video
Photos
Options
Print Property sheet
Send property sheet by mail
Schedule a visit
RealEstate Brokers
Schembri Maria Pawla
+356 7732 8183
+356 9998 6779
+356 9998 6775
pawla@sensaramalta.com
Information request
Name *
Phone *
E-mail *
Request Details *
I authorize the processing of my personal data according Regolamento UE n. 679/2016 -
Privacy Policy
I authorize the processing of data for marketing purposes, promotional activities, commercial offers and market surveys.
Send
Share on
We also recommend
for Sale
Mqabba - 3 Bedroom Finished Maisonette On Plan
450,500 €
for Sale
Santa Venera - 3 Bedroom Finished, Elevated Maisonette + Pool
430,000 €
for Sale
Naxxar - 2 Bedroom Finished Ground Floor Maisonette On Plan
324,000 €
Keep default settings X
Use of cookies
This site uses cookies. Our (own) cookies and those of our Partners (third party cookies) are used to offer you a unique experience with us. For this reason, together with our partners, we collect and process non-sensitive information (such as the identifier of your device or the pages you visit).
At any time you can delete, modify or verify the information you share in
Cookie preference
or in our
Cookie Policy
and
Privacy Policy
.
Necessary
Functional
Profiling
Analytics
Accept all
Decline all
Accept selected
Cookie preference