Toggle navigation
(+356) 2164 9500
(+356) 9998 6779
info@sensaramalta.com
Head Office - Sensara Malta
Triq Santa Marija, Safi
09.00 to 19.00 hrs
Monday to Saturday
Home
Properties
Sales
Rentals
Foreign
About us
Services
Contacts
Send your request
Previous
Next
645,000 €
CLICK HERE for DETAILED PHOTOS
Xaghra Gozo -SHELL Farmhouse + Pool + Garage
Farmhouse for sale • Xaghra Gozo
β¨ STUNNING CONVERTED FARMHOUSE β XAGΔ¦RA β¨
π‘ Perfect as a family retreat or luxurious countryside getaway
π Located in a beautiful, tranquil neighbourhood
π¨ Conversion works completed β just add your personal touch
πͺ¨ Retains original rustic features including stonework & exposed wooden beams
π A perfect blend of traditional charm and modern potential
π Generous floor plan with high ceilings throughout
ποΈ Ideal for open-plan living areas
ποΈ Spacious bedrooms & luxury bathrooms
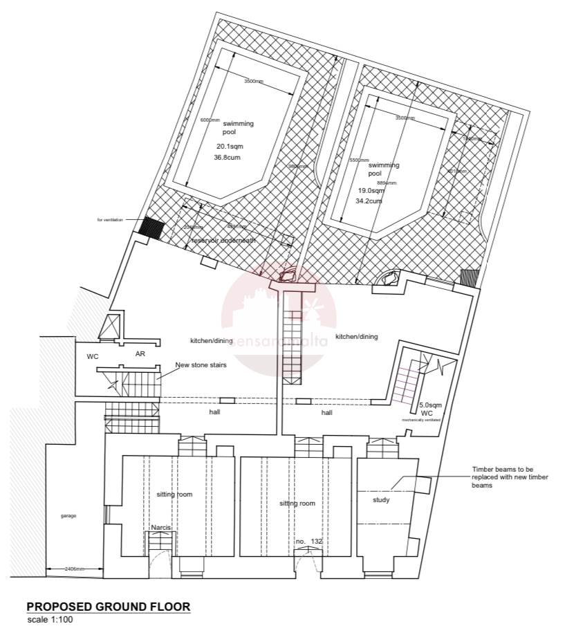
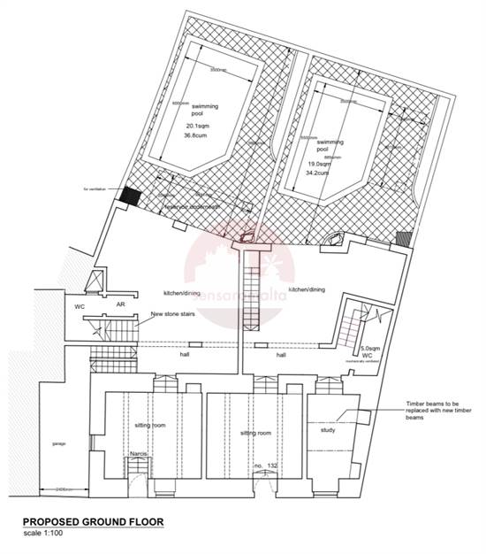
πͺ Ground Floor
β’ Grand entrance room retaining its majestic original character
β’ Newly built open-plan kitchen / dining / living area seamlessly connected to the old structure
β’ Overlooks a good-sized backyard
β’ π Private swimming pool β perfect for relaxation & entertaining
β’ π Street-level one-car garage
π· Basement Level
β’ Old and new sections
β’ Unique old part ideal as a wine cellar or entertaining space
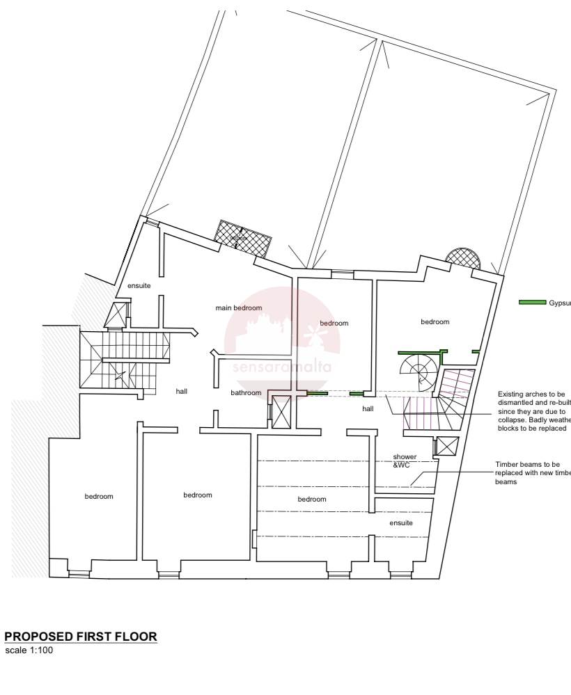
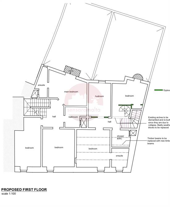
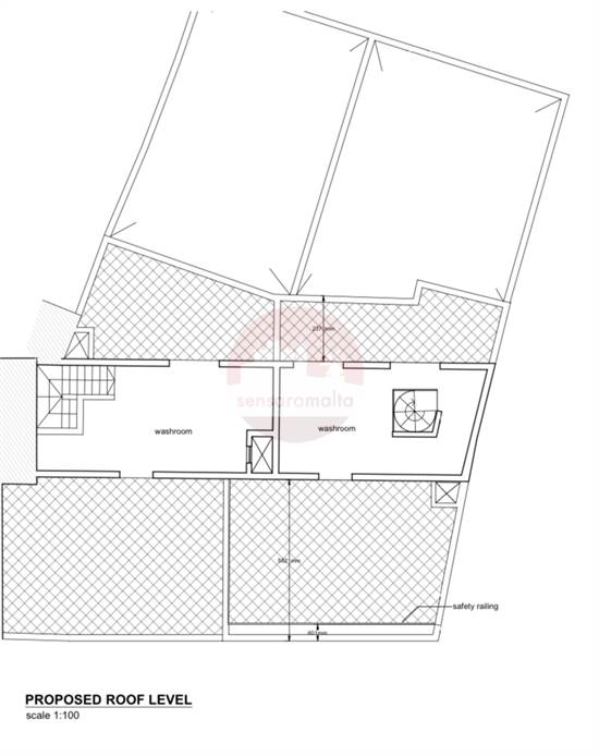
π First Floor
β’ ποΈ 3 bedrooms
β’ π Main bedroom with en-suite
β’ πΏ Guest bathroom
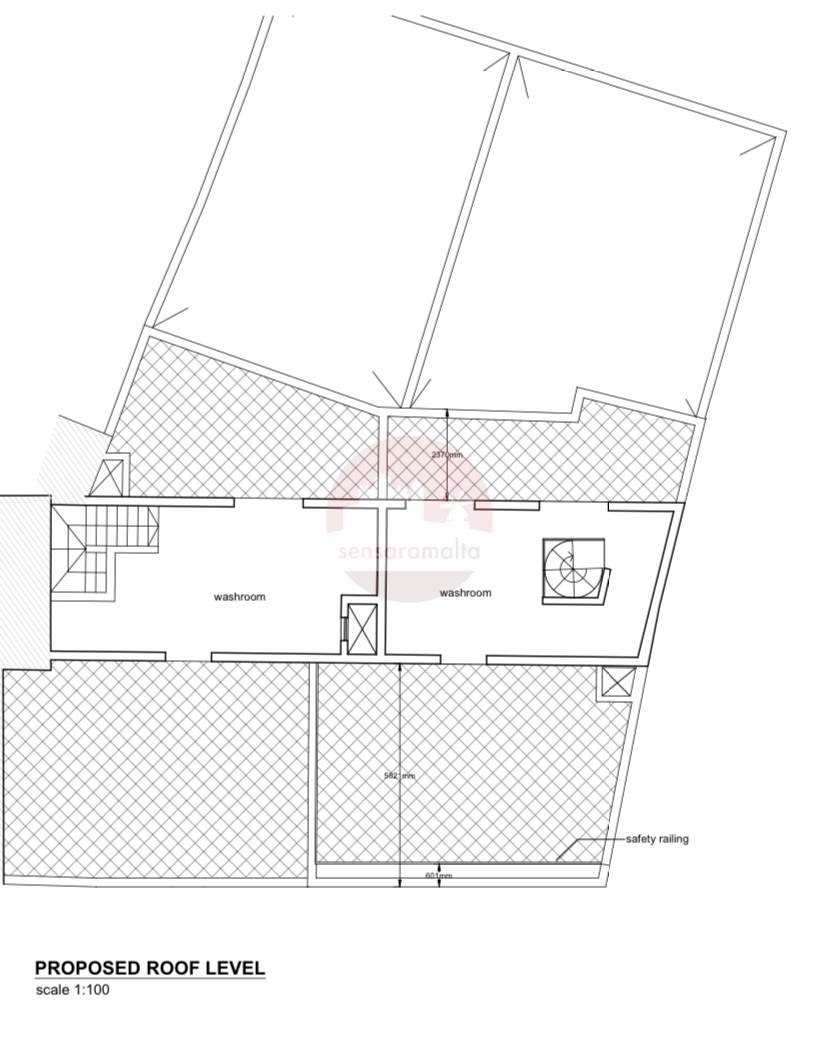
β’ π All bedrooms lead to very spacious terraces enjoying amazing views
π Freehold
π Viewing Highly Recommended
π A rare opportunity to own a character farmhouse in one of Gozoβs most sought-after villages.
π Contact us today to arrange a viewing and start planning your dream home!
Rooms and Features
Code
V020047
Locality
Xaghra Gozo
Property type
Farmhouse
Price
645,000 €
Locals
1
Energetic class
Not applicable
Photos • Floorplans • Video
Photos
Options
Print Property sheet
Send property sheet by mail
Schedule a visit
RealEstate Brokers
Xiberras Joanie
+356 9985 2678
+356 9998 6779
+356 9998 6775
joanie.gozo@sensaramalta.com
Information request
Name *
Phone *
E-mail *
Request Details *
I authorize the processing of my personal data according Regolamento UE n. 679/2016 -
Privacy Policy
I authorize the processing of data for marketing purposes, promotional activities, commercial offers and market surveys.
Send
Share on
We also recommend
for Sale
Naxxar - Unconverted Farmhouse + Land (1565 sqm)
1,792,000 €
for Sale
Qala Gozo - 4 Bedroom Unconverted Farmhouse
646,000 €
for Sale
Farmhouse for sale in Qormi
2,665,000 €
Keep default settings X
Use of cookies
This site uses cookies. Our (own) cookies and those of our Partners (third party cookies) are used to offer you a unique experience with us. For this reason, together with our partners, we collect and process non-sensitive information (such as the identifier of your device or the pages you visit).
At any time you can delete, modify or verify the information you share in
Cookie preference
or in our
Cookie Policy
and
Privacy Policy
.
Necessary
Functional
Profiling
Analytics
Accept all
Decline all
Accept selected
Cookie preference