Toggle navigation
(+356) 2164 9500
(+356) 9998 6779
info@sensaramalta.com
Head Office - Sensara Malta
Triq Santa Marija, Safi
09.00 to 19.00 hrs
Monday to Saturday
Home
Properties
Sales
Rentals
Foreign
About us
Services
Contacts
Send your request
Previous
Next
518,000 €
CLICK HERE for DETAILED PHOTOS
Mosta - 3 Bedroom Apartment Finished - On Plan
3+ bedroom apartment for sale • Mosta
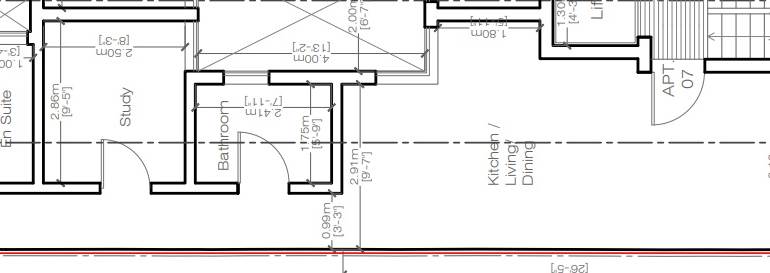
Forming part of a small block of apartments, laid on the third floor, enjoying an impeccable squarish layout laid on circa 140sqm and comprises of a hallway leading to its open plan kitchen/living/dining overlooking a front terrace, bathroom, large main bedroom enjoying another front terrace with walk-in and ensuite and two other bedrooms.
The property is being offered finished excluding bathrooms and internal doors and its Freehold.
Rooms and Features
Code
V020096
Locality
Mosta
Property type
3+ bedroom apartment
Price
518,000 €
Locals
1
Bedrooms
3
Bathrooms
2
Sqm
140
Floor
3
Energetic class
Not applicable
Property Conditions
Under Construction
Photos • Floorplans • Video
Photos
Options
Print Property sheet
Send property sheet by mail
Schedule a visit
RealEstate Brokers
Zahra Gaynor
+356 7933 5643
+356 9998 6775
+356 9998 6779
gaynor@sensaramalta.com
Information request
Name *
Phone *
E-mail *
Request Details *
I authorize the processing of my personal data according Regolamento UE n. 679/2016 -
Privacy Policy
I authorize the processing of data for marketing purposes, promotional activities, commercial offers and market surveys.
Send
Share on
We also recommend
for Sale
Birkirkara - 1st Floor 3 Bedroom Finished Apartment - On Plan
310,000 €
for Sale
Mosta - 3 Bedroom Finished Ground Floor Apt + Pool
430,000 €
for Sale
Victoria Gozo - Ready Built 3 Bedroom Apartment
265,000 €
Keep default settings X
Use of cookies
This site uses cookies. Our (own) cookies and those of our Partners (third party cookies) are used to offer you a unique experience with us. For this reason, together with our partners, we collect and process non-sensitive information (such as the identifier of your device or the pages you visit).
At any time you can delete, modify or verify the information you share in
Cookie preference
or in our
Cookie Policy
and
Privacy Policy
.
Necessary
Functional
Profiling
Analytics
Accept all
Decline all
Accept selected
Cookie preference