Toggle navigation
(+356) 2164 9500
(+356) 9998 6779
info@sensaramalta.com
Head Office - Sensara Malta
Triq Santa Marija, Safi
09.00 to 19.00 hrs
Monday to Saturday
Home
Properties
Sales
Rentals
Foreign
About us
Services
Contacts
Send your request
Previous
Next
820,000 €
CLICK HERE for DETAILED PHOTOS
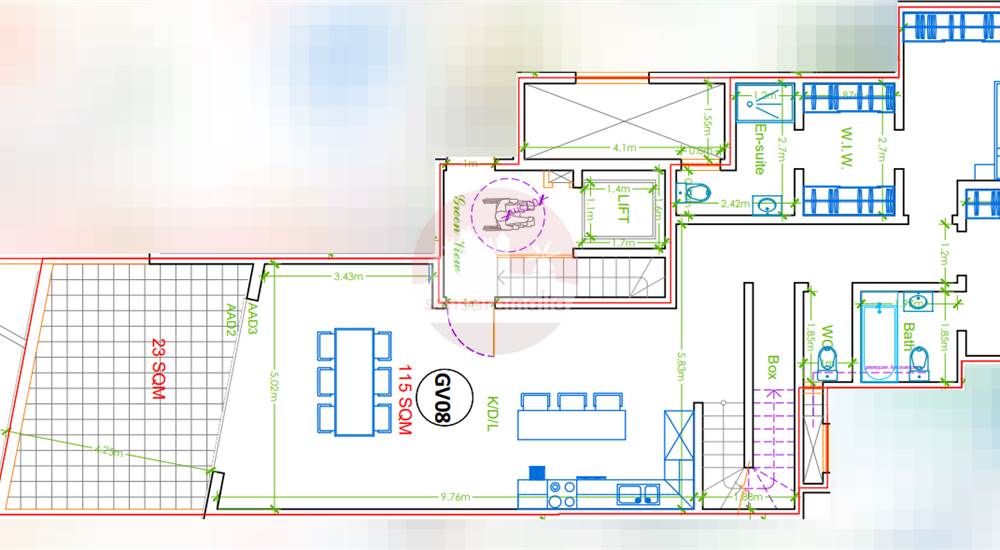
Mosta - 287sqm Duplex Penthouse
Duplex for sale • Mosta
This larger than usual penthouse, set in a very sought area, is waiting just for you!
This 287sqm penthouse is one of a kind!
On the 4th floor, it welcomes you with a spacious KLD, overlooking a 23sqm terrace with a very useful box room. At the other end of the property, you can find the main bathroom and the two double bedrooms, both including an access to a private back balcony and one of the bedrooms also comes with an ensuite and walk-in wardrobe.
On the 5th floor, the property offers another KLD overlooking a luxurious 76sqm terrace with space for a pool, another bathroom and another double bedroom which comes with an ensuite, walk-in wardrobe and private back balcony.
This excellent property is guaranteed to meet all your needs, being offered finished excluding bathrooms and doors. However, bathrooms and internal doors can also be ready for you at an extra cost.
Airspace is included and there is the possibility to build further as well.
It is being sold freehold.
Rooms and Features
Code
V020607
Locality
Mosta
Property type
Duplex
Price
820,000 €
Locals
1
Bedrooms
3
Bathrooms
4
Sqm
287
Garages
1
Balconies
2
Terraces
2
Energetic class
Not applicable
Photos • Floorplans • Video
Photos
Options
Print Property sheet
Send property sheet by mail
Schedule a visit
RealEstate Brokers
Aguis Lorna
+356 9961 6121
+356 9998 6779
+356 2164 9500
lorna@sensaramalta.com
Information request
Name *
Phone *
E-mail *
Request Details *
I authorize the processing of my personal data according Regolamento UE n. 679/2016 -
Privacy Policy
I authorize the processing of data for marketing purposes, promotional activities, commercial offers and market surveys.
Send
Share on
We also recommend
for Sale
Ta' Xbiex, Duplex 5th & 6th Floor 3 Bedroom * Finished Penthouse with Terrace + Roof
580,000 €
for Sale
San Pawl il- Bahar - Duplex 2 Bedroom Finished Penthouse + Side Sea Views
358,500 €
for Sale
Birkirkara - 2 Bedroom Duplex Apartment
353,500 €
Keep default settings X
Use of cookies
This site uses cookies. Our (own) cookies and those of our Partners (third party cookies) are used to offer you a unique experience with us. For this reason, together with our partners, we collect and process non-sensitive information (such as the identifier of your device or the pages you visit).
At any time you can delete, modify or verify the information you share in
Cookie preference
or in our
Cookie Policy
and
Privacy Policy
.
Necessary
Functional
Profiling
Analytics
Accept all
Decline all
Accept selected
Cookie preference