Toggle navigation
(+356) 2164 9500
(+356) 9998 6779
info@sensaramalta.com
Head Office - Sensara Malta
Triq Santa Marija, Safi
09.00 to 19.00 hrs
Monday to Saturday
Home
Properties
Sales
Rentals
Foreign
About us
Services
Contacts
Send your request
Previous
Next
410,000 €
CLICK HERE for DETAILED PHOTOS
Ghaxaq- 2 Bedroom Penthouse
Penthouse for sale • Ghaxaq
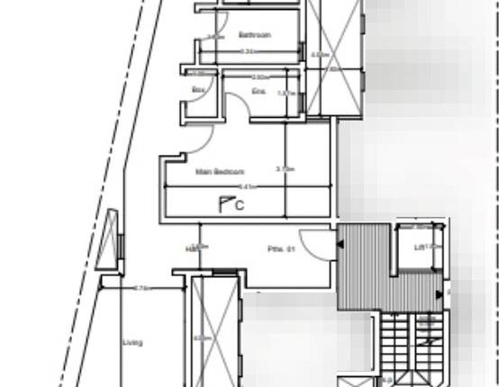
This corner 2-bedroom penthouse in Għaxaq offers a stunning squarish layout with a total area of 177 square meters, including an impressive 87 square meters of terraces that wrap around the entire property, ensuring abundant natural light from every room.
The property boasts a spacious open-plan layout that combines the kitchen, living, and dining areas seamlessly, providing a modern and functional living space. The two bedrooms are well-proportioned, with the main bedroom featuring an en-suite for added convenience. A main bathroom serves the rest of the property.
The expansive terraces provide ample outdoor space for entertaining, relaxing, or creating your own private oasis. With access from all rooms, the outdoor area truly extends the living experience.
This penthouse is being sold finished (excluding bathrooms and internal doors), giving you the flexibility to personalize it to your tastes. Currently on plan, the project is expected to be completed by the end of 2026, offering an excellent investment opportunity or future dream home in a tranquil location.
Rooms and Features
Code
V020760
Locality
Ghaxaq
Property type
Penthouse
Price
410,000 €
Locals
1
Bedrooms
2
Bathrooms
2
Sqm
177
sqm Terrace
88
Floor
4
Energetic class
Nondescript
Property Conditions
Under Construction
Photos • Floorplans • Video
Photos
Options
Print Property sheet
Send property sheet by mail
Schedule a visit
RealEstate Brokers
Briffa Stephania
+356 7747 9456
+356 9998 6779
+356 9998 6775
stephania@sensaramalta.com
Information request
Name *
Phone *
E-mail *
Request Details *
I authorize the processing of my personal data according Regolamento UE n. 679/2016 -
Privacy Policy
I authorize the processing of data for marketing purposes, promotional activities, commercial offers and market surveys.
Send
Share on
We also recommend
for Sale
Tarxien - 3 Bedroom Penthouse
512,000 €
for Sale
Ghaxaq - 1 Bedroom + Study Penthouse / Back & Front Terrace / Airspace Incl.
365,000 €
for Sale
San Pawl Il-Bahar - 3 Bedroom Seventh Floor Penthouse
442,000 €
Keep default settings X
Use of cookies
This site uses cookies. Our (own) cookies and those of our Partners (third party cookies) are used to offer you a unique experience with us. For this reason, together with our partners, we collect and process non-sensitive information (such as the identifier of your device or the pages you visit).
At any time you can delete, modify or verify the information you share in
Cookie preference
or in our
Cookie Policy
and
Privacy Policy
.
Necessary
Functional
Profiling
Analytics
Accept all
Decline all
Accept selected
Cookie preference