Toggle navigation
(+356) 2164 9500
(+356) 9998 6779
info@sensaramalta.com
Head Office - Sensara Malta
Triq Santa Marija, Safi
09.00 to 19.00 hrs
Monday to Saturday
Home
Properties
Sales
Rentals
Foreign
About us
Services
Contacts
Send your request
Previous
Next
318,000 €
CLICK HERE for DETAILED PHOTOS
Xewkija Gozo - 3 Bedroom Finished Apartment
3+ bedroom apartment for sale • Xewkija Gozo
Discover your dream home in the heart of Xewkija.
This finished three-bedroom apartment offers modern comfort, making it the perfect retreat for families or individuals seeking a modern yet convenient lifestyle.
Key Features:
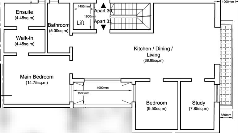
156sqm Three bedroom apartment ,forming part of a new block.
Modern Finishings: Designed with quality and functionality in mind.
Country Views: Relax and unwind with scenic surroundings.
Easy access to amenities.
OPTIONAL GARAGE
Don't miss the chance to own this wonderful property in Xewkija.
Contact us today to schedule a viewing!
Rooms and Features
Code
V020806
Locality
Xewkija Gozo
Property type
3+ bedroom apartment
Price
318,000 €
Locals
1
Sqm
156
Energetic class
Not applicable
Photos • Floorplans • Video
Photos
Options
Print Property sheet
Send property sheet by mail
Schedule a visit
RealEstate Brokers
Xiberras Joanie
+356 9985 2678
+356 9998 6779
+356 9998 6775
joanie.gozo@sensaramalta.com
Information request
Name *
Phone *
E-mail *
Request Details *
I authorize the processing of my personal data according Regolamento UE n. 679/2016 -
Privacy Policy
I authorize the processing of data for marketing purposes, promotional activities, commercial offers and market surveys.
Send
Share on
We also recommend
for Sale
Qrendi - 1st Floor Large 4 Finished Bedroom Apartment
522,000 €
for Sale
Marsaxlokk - 3rd Floor 3 Bedroom Finished Apartment (On Plan)
435,000 €
for Sale
Rabat - 3 Bedroom Finished Luxurious Apartment + Pool + Terrace + Views
3,100,000 €
Keep default settings X
Use of cookies
This site uses cookies. Our (own) cookies and those of our Partners (third party cookies) are used to offer you a unique experience with us. For this reason, together with our partners, we collect and process non-sensitive information (such as the identifier of your device or the pages you visit).
At any time you can delete, modify or verify the information you share in
Cookie preference
or in our
Cookie Policy
and
Privacy Policy
.
Necessary
Functional
Profiling
Analytics
Accept all
Decline all
Accept selected
Cookie preference