Toggle navigation
(+356) 2164 9500
(+356) 9998 6779
info@sensaramalta.com
Head Office - Sensara Malta
Triq Santa Marija, Safi
09.00 to 19.00 hrs
Monday to Saturday
Home
Properties
Sales
Rentals
Foreign
About us
Services
Contacts
Send your request
Previous
Next
266,500 €
CLICK HERE for DETAILED PHOTOS
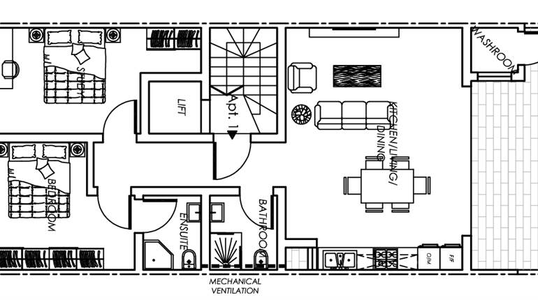
Marsa - 2 Bedroom Apartment Fully Finished
2 bedroom apartment for sale • Marsa
Construction is about to begin for this new project of 2 Bedroom Units and part of a small block of only 4 units, served with lift. To be Sold Fully Finished including Bathroom and Internal Doors. Estimated to be ready by end of this year 2025.
First Floor Apartment features an open plan Kitchen/Living/Dining overlooking a decent larger than usual balcony, Main Bedroom with an internal yard, Main Bathroom and a Spare Bedroom with a well sized Terrace.
Freehold - Hurry up and book yours now!!... Pay Later!!
Rooms and Features
Code
V021037
Locality
Marsa
Property type
2 bedroom apartment
Price
266,500 €
Locals
1
Bedrooms
2
Bathrooms
1
Sqm
110
Balconies
1
Terraces
2
Floor
1
Energetic class
Nondescript
Property Conditions
Under Construction
Photos • Floorplans • Video
Photos
Options
Print Property sheet
Send property sheet by mail
Schedule a visit
RealEstate Brokers
Jenkins Rita
+356 7712 7772
+356 9998 6779
+356 9998 6775
rita@sensaramalta.com
Information request
Name *
Phone *
E-mail *
Request Details *
I authorize the processing of my personal data according Regolamento UE n. 679/2016 -
Privacy Policy
I authorize the processing of data for marketing purposes, promotional activities, commercial offers and market surveys.
Send
Share on
We also recommend
for Sale
Fgura - 2 Bedroom Apartment On Plan
256,000 €
for Sale
Sannat Gozo - 3 Bedroom Furnished Apartment
275,000 €
for Sale
Ta' Xbiex, 1st Floor 2 Bedroom * Finished apartment with Yard
350,000 €
Keep default settings X
Use of cookies
This site uses cookies. Our (own) cookies and those of our Partners (third party cookies) are used to offer you a unique experience with us. For this reason, together with our partners, we collect and process non-sensitive information (such as the identifier of your device or the pages you visit).
At any time you can delete, modify or verify the information you share in
Cookie preference
or in our
Cookie Policy
and
Privacy Policy
.
Necessary
Functional
Profiling
Analytics
Accept all
Decline all
Accept selected
Cookie preference