Toggle navigation
(+356) 2164 9500
(+356) 9998 6779
info@sensaramalta.com
Head Office - Sensara Malta
Triq Santa Marija, Safi
09.00 to 19.00 hrs
Monday to Saturday
Home
Properties
Sales
Rentals
Foreign
About us
Services
Contacts
Send your request
Previous
Next
332,500 €
CLICK HERE for DETAILED PHOTOS
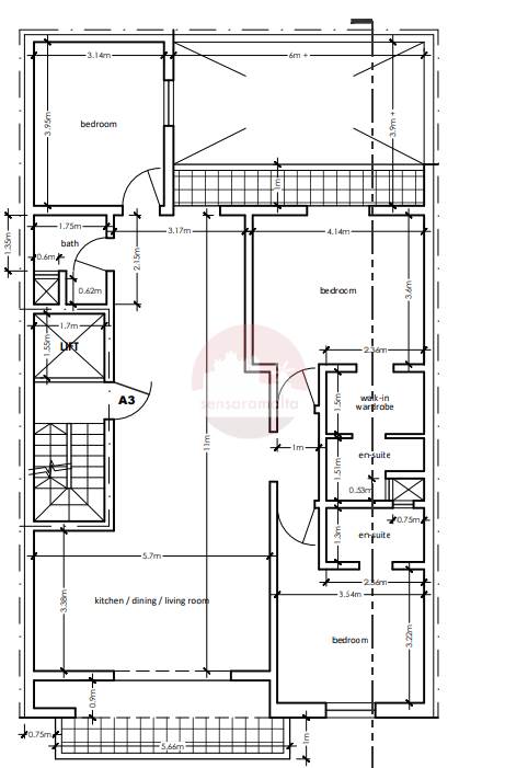
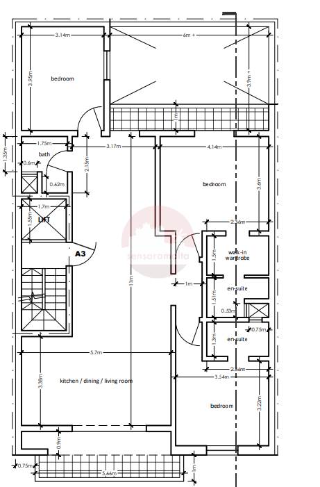
Zejtun - 150sqm 3 Bedroom Apartment
3+ bedroom apartment for sale • Zejtun
Presently on plan and to be constructed by end of 2026, enjoying circa 150 sqm and having an over 10-meter facade.
This third-floor apartment, served with a lift enjoys the ideal layout. Upon entering one finds an over 50sqm open plan kitchen/living/dining overlooking a front terrace and interconnect its back terrace also, side 2 double bedrooms both enjoying an ensuite and one with a walk-in, a guest bathroom and another bedroom overlooking its back terrace.
It is being offered in Shell form, freehold, and it's a truly hard-to-come-by plan compared to recent new developments.
Rooms and Features
Code
V021170
Locality
Zejtun
Property type
3+ bedroom apartment
Price
332,500 €
Locals
1
Bedrooms
3
Bathrooms
3
Sqm
150
Balconies
2
Floor
3
Energetic class
Nondescript
Property Conditions
Under Construction
Photos • Floorplans • Video
Photos
Options
Print Property sheet
Send property sheet by mail
Schedule a visit
RealEstate Brokers
Zahra Gaynor
+356 7933 5643
+356 9998 6775
+356 9998 6779
gaynor@sensaramalta.com
Information request
Name *
Phone *
E-mail *
Request Details *
I authorize the processing of my personal data according Regolamento UE n. 679/2016 -
Privacy Policy
I authorize the processing of data for marketing purposes, promotional activities, commercial offers and market surveys.
Send
Share on
We also recommend
for Sale
Gudja - 2nd Floor 3 Bedroom Apartment Highly Finished
358,500 €
for Sale
Lija - 3 Bedroom Apartment Finished
472,500 €
for Sale
San Giljan - 3 Bedroom Furnished Apartment
500,000 €
Keep default settings X
Use of cookies
This site uses cookies. Our (own) cookies and those of our Partners (third party cookies) are used to offer you a unique experience with us. For this reason, together with our partners, we collect and process non-sensitive information (such as the identifier of your device or the pages you visit).
At any time you can delete, modify or verify the information you share in
Cookie preference
or in our
Cookie Policy
and
Privacy Policy
.
Necessary
Functional
Profiling
Analytics
Accept all
Decline all
Accept selected
Cookie preference