Toggle navigation
(+356) 2164 9500
(+356) 9998 6779
info@sensaramalta.com
Head Office - Sensara Malta
Triq Santa Marija, Safi
09.00 to 19.00 hrs
Monday to Saturday
Home
Properties
Sales
Rentals
Foreign
About us
Services
Contacts
Send your request
Previous
Next
390,000 €
CLICK HERE for DETAILED PHOTOS
Zejtun - 2 Bedroom Penthouse
Penthouse for sale • Zejtun
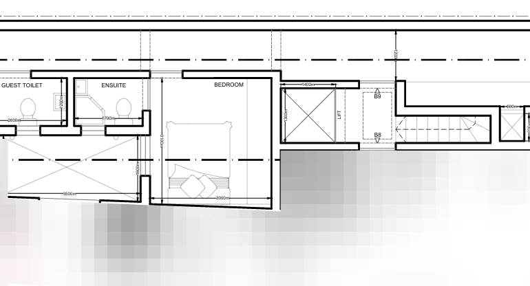
Forming part of a small block of only 4 units, laid on the 5th floor, built on a plot size of circa 165 sqm, and enjoys a wide frontage of over 10 meters.
This Penthouse sits on a plot of circa 165sqm with a 28sqm open plan overlooking its large front terrace, bathroom, a master bedroom enjoying a walk-in and an ensuite, and another double bedroom overlooking its back terrace.
Freehold
Rooms and Features
Code
V021171
Locality
Zejtun
Property type
Penthouse
Price
390,000 €
Locals
1
Bedrooms
2
Bathrooms
2
Sqm
134
Floor
4
Energetic class
Nondescript
Property Conditions
Under Construction
Photos • Floorplans • Video
Photos
Options
Print Property sheet
Send property sheet by mail
Schedule a visit
RealEstate Brokers
Zahra Gaynor
+356 7933 5643
+356 9998 6775
+356 9998 6779
gaynor@sensaramalta.com
Information request
Name *
Phone *
E-mail *
Request Details *
I authorize the processing of my personal data according Regolamento UE n. 679/2016 -
Privacy Policy
I authorize the processing of data for marketing purposes, promotional activities, commercial offers and market surveys.
Send
Share on
We also recommend
for Sale
Birkirkara - 3 Bedroom Finished Penthouse With Pool+Airspace Ready Built
551,000 €
for Sale
Safi - 2 Bedroom Penthouse Unobstructed Views
359,000 €
for Sale
Zabbar - 2 Bedroom Penthouse + Airspace
272,000 €
Keep default settings X
Use of cookies
This site uses cookies. Our (own) cookies and those of our Partners (third party cookies) are used to offer you a unique experience with us. For this reason, together with our partners, we collect and process non-sensitive information (such as the identifier of your device or the pages you visit).
At any time you can delete, modify or verify the information you share in
Cookie preference
or in our
Cookie Policy
and
Privacy Policy
.
Necessary
Functional
Profiling
Analytics
Accept all
Decline all
Accept selected
Cookie preference