Toggle navigation
(+356) 2164 9500
(+356) 9998 6779
info@sensaramalta.com
Head Office - Sensara Malta
Triq Santa Marija, Safi
09.00 to 19.00 hrs
Monday to Saturday
Home
Properties
Sales
Rentals
Foreign
About us
Services
Contacts
Send your request
Previous
Next
343,000 €
CLICK HERE for DETAILED PHOTOS
Mosta, Already Built ** Finished 2 Bedroom Apartment with Terrace & Balcony ** optional Garages
2 bedroom apartment for sale • Mosta
In a desirable residential area in Mosta comes this already built 2 bedroom apartment which being offered finished excluding bathrooms and internal doors.
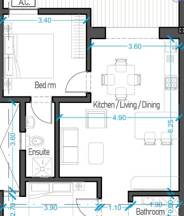
This second-floor apartment measures circa 101 sqm internally and 13 sqm externally and it comprises of an open plan kitchen/living/dining overlooking a front terrace, side two bedrooms of which main enjoys an ensuite and guest bathroom.
Optional garages available and starting from Euros 44,000.
Rooms and Features
Code
V021355
Locality
Mosta
Property type
2 bedroom apartment
Price
343,000 €
Locals
1
Bedrooms
2
Bathrooms
2
Sqm
114.5
Floor
2
Energetic class
Not applicable
Property Conditions
Under Construction
Photos • Floorplans • Video
Photos
Options
Print Property sheet
Send property sheet by mail
Schedule a visit
RealEstate Brokers
Schembri Maria Pawla
+356 7732 8183
+356 9998 6779
+356 9998 6775
pawla@sensaramalta.com
Information request
Name *
Phone *
E-mail *
Request Details *
I authorize the processing of my personal data according Regolamento UE n. 679/2016 -
Privacy Policy
I authorize the processing of data for marketing purposes, promotional activities, commercial offers and market surveys.
Send
Share on
We also recommend
for Sale
Qormi - 1st Floor 2 Bedroom Apartment Finished + Terrace + Optional Garage
292,000 €
for Sale
Rabat - 2nd Floor 2 Bedroom Finished Apartment + Terrace + Balconies
335,000 €
for Sale
Qawra - 2 Bedroom Fully Finished 2nd Floor Apartment Ready Built
315,000 €
Keep default settings X
Use of cookies
This site uses cookies. Our (own) cookies and those of our Partners (third party cookies) are used to offer you a unique experience with us. For this reason, together with our partners, we collect and process non-sensitive information (such as the identifier of your device or the pages you visit).
At any time you can delete, modify or verify the information you share in
Cookie preference
or in our
Cookie Policy
and
Privacy Policy
.
Necessary
Functional
Profiling
Analytics
Accept all
Decline all
Accept selected
Cookie preference