Toggle navigation
(+356) 2164 9500
(+356) 9998 6779
info@sensaramalta.com
Head Office - Sensara Malta
Triq Santa Marija, Safi
09.00 to 19.00 hrs
Monday to Saturday
Home
Properties
Sales
Rentals
Foreign
About us
Services
Contacts
Send your request
Previous
Next
251,000 €
CLICK HERE for DETAILED PHOTOS
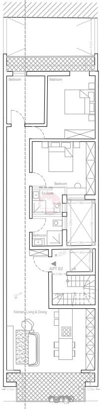
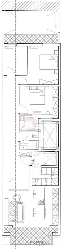
Fgura - On plan 3 Bedroom Apartment Finished
3+ bedroom apartment for sale • Fgura
Forming part of a small block, laid on the 3rd floor level, construction will commence by mid-July 2025 and be finished by June 2026, including common parts.
This apartment is being offered finished excluding bathrooms and internal doors. It comprises a kitchen/living/dining, guest bathroom, 2 double bedrooms main with an ensuite, a study, and a front and back balcony.
Freehold.
Rooms and Features
Code
V021450
Locality
Fgura
Property type
3+ bedroom apartment
Price
251,000 €
Locals
1
Bedrooms
3
Bathrooms
2
Sqm
113
Floor
3
Energetic class
Not applicable
Property Conditions
Under Construction
Photos • Floorplans • Video
Photos
Options
Print Property sheet
Send property sheet by mail
Schedule a visit
RealEstate Brokers
Cortis Marika
+356 9925 6579
+356 9998 6779
+356 9998 6775
cortis@sensaramalta.com
Information request
Name *
Phone *
E-mail *
Request Details *
I authorize the processing of my personal data according Regolamento UE n. 679/2016 -
Privacy Policy
I authorize the processing of data for marketing purposes, promotional activities, commercial offers and market surveys.
Send
Share on
We also recommend
for Sale
Zabbar - 2nd Floor 3 Bedroom + Study Room Apartment Finished (On plan)
420,000 €
for Sale
Qormi - 2 Bedroom Apartment On Plan
240,000 €
for Sale
San Giljan - 3 Bedroom Furnished Apartment
500,000 €
Keep default settings X
Use of cookies
This site uses cookies. Our (own) cookies and those of our Partners (third party cookies) are used to offer you a unique experience with us. For this reason, together with our partners, we collect and process non-sensitive information (such as the identifier of your device or the pages you visit).
At any time you can delete, modify or verify the information you share in
Cookie preference
or in our
Cookie Policy
and
Privacy Policy
.
Necessary
Functional
Profiling
Analytics
Accept all
Decline all
Accept selected
Cookie preference