Toggle navigation
(+356) 2164 9500
(+356) 9998 6779
info@sensaramalta.com
Head Office - Sensara Malta
Triq Santa Marija, Safi
09.00 to 19.00 hrs
Monday to Saturday
Home
Properties
Sales
Rentals
Foreign
About us
Services
Contacts
Send your request
Previous
Next
225,500 €
CLICK HERE for DETAILED PHOTOS
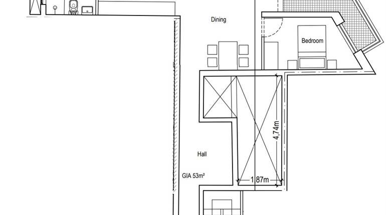
Marsascala - Duplex 1 Bedroom Furnished Apartment
1 bedroom apartment for sale • Marsascala
In Marsascala comes a well kept and fully furnished one double bedroom duplex apartment served with a lift.
Upon entering one finds a kitchen/living/dining/balcony. On the second floor one finds a double bedroom and a bathroom.
Freehold
Rooms and Features
Code
V021585
Locality
Marsascala
Property type
1 bedroom apartment
Price
225,500 €
Locals
1
Bedrooms
1
Bathrooms
1
Sqm
55
Balconies
2
Energetic class
Not applicable
Property Conditions
Perfect Conditions
Accessories:
Air Conditioning, Elevator, Double Glazing
Photos • Floorplans • Video
Photos
Options
Print Property sheet
Send property sheet by mail
Schedule a visit
RealEstate Brokers
Grima Keith
+356 7902 0587
+356 9998 6775
+356 9998 6779
keith@sensaramalta.com
Information request
Name *
Phone *
E-mail *
Request Details *
I authorize the processing of my personal data according Regolamento UE n. 679/2016 -
Privacy Policy
I authorize the processing of data for marketing purposes, promotional activities, commercial offers and market surveys.
Send
Share on
We also recommend
for Sale
Gudja - 1 Bedroom 1st Floor Finished Apartment On Plan
272,000 €
for Sale
Paola - On Plan 1 Bedroom Apartment
180,000 €
for Sale
Paola - Shell Form 1 Bedroom Apartment
180,000 €
Keep default settings X
Use of cookies
This site uses cookies. Our (own) cookies and those of our Partners (third party cookies) are used to offer you a unique experience with us. For this reason, together with our partners, we collect and process non-sensitive information (such as the identifier of your device or the pages you visit).
At any time you can delete, modify or verify the information you share in
Cookie preference
or in our
Cookie Policy
and
Privacy Policy
.
Necessary
Functional
Profiling
Analytics
Accept all
Decline all
Accept selected
Cookie preference