Toggle navigation
(+356) 2164 9500
(+356) 9998 6779
info@sensaramalta.com
Head Office - Sensara Malta
Triq Santa Marija, Safi
09.00 to 19.00 hrs
Monday to Saturday
Home
Properties
Sales
Rentals
Foreign
About us
Services
Contacts
Send your request
Previous
Next
399,500 €
CLICK HERE for DETAILED PHOTOS
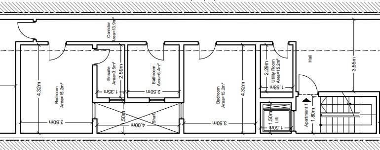
Qormi - 3 Bedroom Apartment
3+ bedroom apartment for sale • Qormi
In the outskirts of Qormi and in a recently built block of apartments comes a finished (excluding internal doors) and furnished three-bedroom apartment set on the first floor and served with a lift.
Upon entering one finds a kitchen/living/dining/a well sized balcony, bathroom, master bedroom ensuite and a balcony, two additional bedrooms with access to a balcony.
Freehold
Rooms and Features
Code
V021627
Locality
Qormi
Property type
3+ bedroom apartment
Price
399,500 €
Locals
1
Bedrooms
3
Bathrooms
2
Sqm
120
Balconies
2
Energetic class
Not applicable
Photos • Floorplans • Video
Photos
Options
Print Property sheet
Send property sheet by mail
Schedule a visit
RealEstate Brokers
Kitney Claudia
+356 9940 4319
+356 9998 6779
+356 9998 6775
claudia@sensaramalta.com
Information request
Name *
Phone *
E-mail *
Request Details *
I authorize the processing of my personal data according Regolamento UE n. 679/2016 -
Privacy Policy
I authorize the processing of data for marketing purposes, promotional activities, commercial offers and market surveys.
Send
Share on
We also recommend
for Sale
Rabat - 3 Bedroom Finished Luxurious Apartment + Pool + Terrace + Views
1 €
for Sale
Marsascala - 3rd floor 3 Bedroom Apartment Finished - On Plan
318,000 €
for Sale
Qormi - 3 Bedroom Apartment On Plan Large Terrace
285,000 €
Keep default settings X
Use of cookies
This site uses cookies. Our (own) cookies and those of our Partners (third party cookies) are used to offer you a unique experience with us. For this reason, together with our partners, we collect and process non-sensitive information (such as the identifier of your device or the pages you visit).
At any time you can delete, modify or verify the information you share in
Cookie preference
or in our
Cookie Policy
and
Privacy Policy
.
Necessary
Functional
Profiling
Analytics
Accept all
Decline all
Accept selected
Cookie preference