Toggle navigation
(+356) 2164 9500
(+356) 9998 6779
info@sensaramalta.com
Head Office - Sensara Malta
Triq Santa Marija, Safi
09.00 to 19.00 hrs
Monday to Saturday
Home
Properties
Sales
Rentals
Foreign
About us
Services
Contacts
Send your request
Previous
Next
1,100,000 €
CLICK HERE for DETAILED PHOTOS
Sliema (Tigne Point) - 1 Bedroom Fully Furnished Apartment
1 bedroom apartment for sale • Sliema
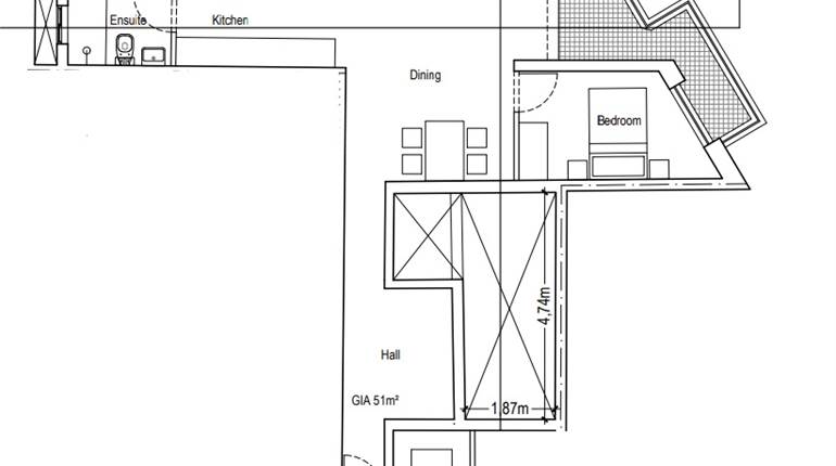
Unique opportunity to own a luxury designer one-bedroom apartment in Tigne Point. Offering a blend of modern elegance and comfort, this stunning residence boasts breath taking views. It consists of a hallway, a spacious open plan kitchen/dining/living, a bedroom with ensuite and a front terrace. This apartment is being offered fully furnished and ready to move into.
Rooms and Features
Code
V021638
Locality
Sliema
Property type
1 bedroom apartment
Price
1,100,000 €
Locals
1
Bedrooms
1
Bathrooms
2
Sqm
60
Balconies
1
Energetic class
Nondescript
Photos • Floorplans • Video
Photos
Options
Print Property sheet
Send property sheet by mail
Schedule a visit
RealEstate Brokers
Zahra Gaynor
+356 7933 5643
+356 9998 6775
+356 9998 6779
gaynor@sensaramalta.com
Information request
Name *
Phone *
E-mail *
Request Details *
I authorize the processing of my personal data according Regolamento UE n. 679/2016 -
Privacy Policy
I authorize the processing of data for marketing purposes, promotional activities, commercial offers and market surveys.
Send
Share on
We also recommend
for Sale
Swieqi- 2nd floor , 1 bedroom + Back Balcony + Fully Finished + Opt Garage
292,000 €
for Sale
Gozo Victoria: one bedroom STUDIO Maisonette
135,000 €
for Sale
San Gwann - 1 Bedroom 4th Floor Apartment On Plan
252,000 €
Keep default settings X
Use of cookies
This site uses cookies. Our (own) cookies and those of our Partners (third party cookies) are used to offer you a unique experience with us. For this reason, together with our partners, we collect and process non-sensitive information (such as the identifier of your device or the pages you visit).
At any time you can delete, modify or verify the information you share in
Cookie preference
or in our
Cookie Policy
and
Privacy Policy
.
Necessary
Functional
Profiling
Analytics
Accept all
Decline all
Accept selected
Cookie preference