Toggle navigation
(+356) 2164 9500
(+356) 9998 6779
info@sensaramalta.com
Head Office - Sensara Malta
Triq Santa Marija, Safi
09.00 to 19.00 hrs
Monday to Saturday
Home
Properties
Sales
Rentals
Foreign
About us
Services
Contacts
Send your request
Previous
Next
399,500 €
CLICK HERE for DETAILED PHOTOS
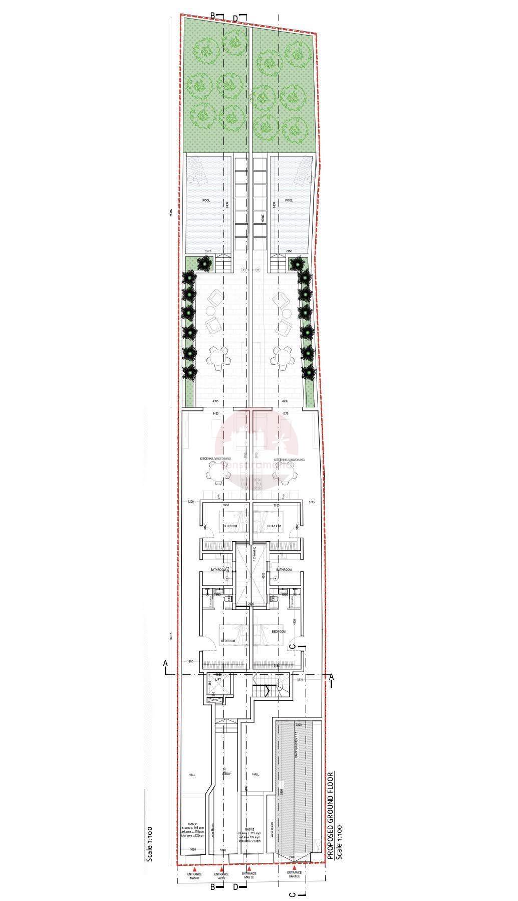
Luqa- 2 bedroom elevated Maisonette (On Plan)
Maisonette for sale • Luqa
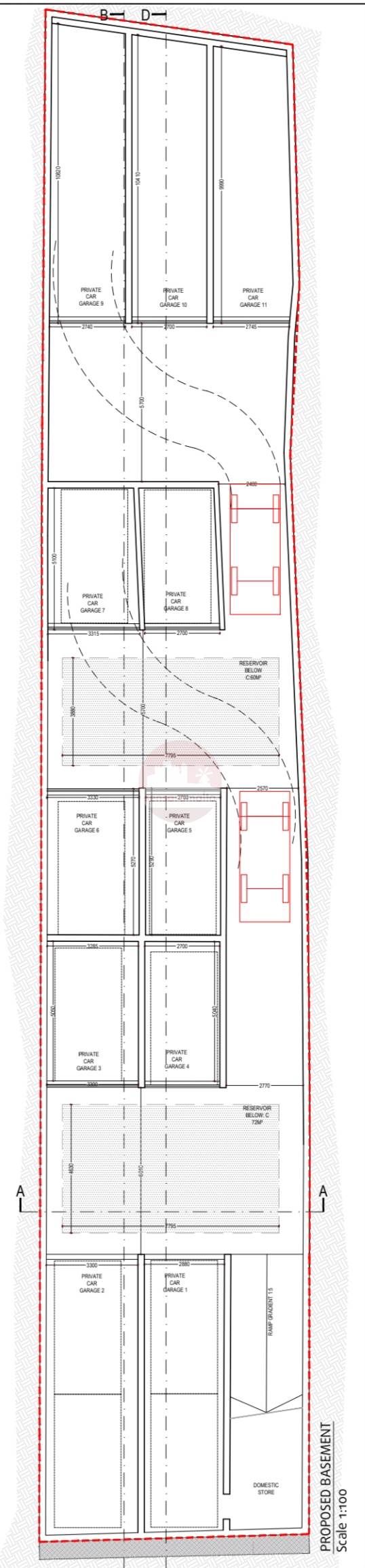
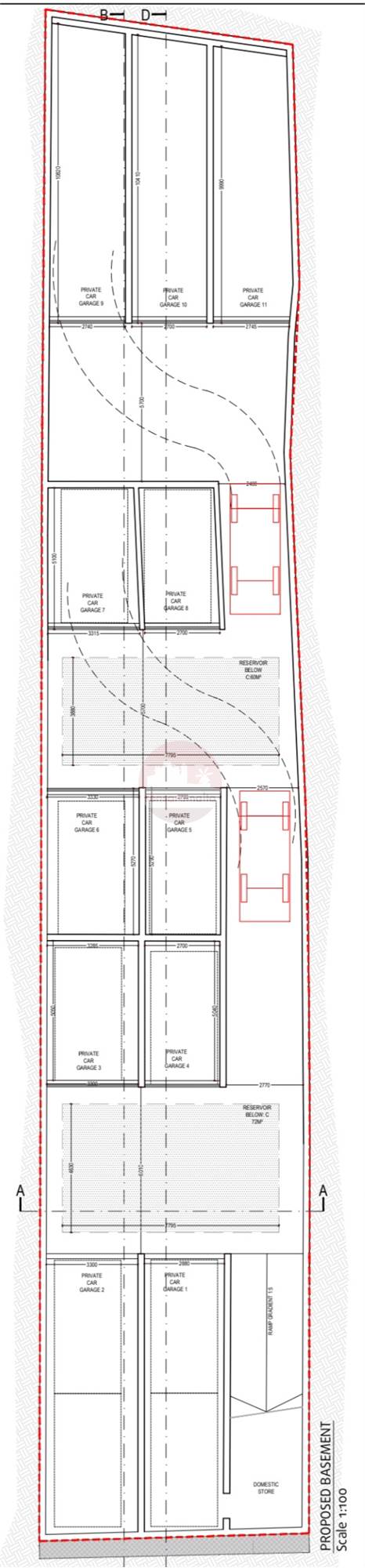
This elevated maisonette features K/L/D overlooking backyard, 2 double bedrooms, main bathroom and internal courtyard.
The property boasts a spacious approx 100sqms backyard with space for pool and garden, ideal for entertainment. Being sold finished excluding bathrooms & internal doors. Target completion date mid 2027.
Optional garages available starting from 62k.
Freehold
Rooms and Features
Code
V021731
Locality
Luqa
Property type
Maisonette
Price
399,500 €
Locals
1
Bedrooms
2
Bathrooms
1
Sqm
221
Floor
Mezzanine
Energetic class
Not applicable
Property Conditions
Under Construction
Garden
Private
Furniture
Not Furnished
Kitchen
Open Kitchen
Accessories:
Double Glazing, Swimming Pool
Photos • Floorplans • Video
Photos
Options
Print Property sheet
Send property sheet by mail
Schedule a visit
RealEstate Brokers
Grima Keith
+356 7902 0587
+356 9998 6775
+356 9998 6779
keith@sensaramalta.com
Information request
Name *
Phone *
E-mail *
Request Details *
I authorize the processing of my personal data according Regolamento UE n. 679/2016 -
Privacy Policy
I authorize the processing of data for marketing purposes, promotional activities, commercial offers and market surveys.
Send
Share on
We also recommend
for Sale
Gharghur 2 Bedroom Ground Floor Maisonette 125sqm
425,000 €
for Sale
Marsascala - Elevated 3 Bedroom Ground Floor Maisonette + Optional Garage
451,000 €
for Sale
Zabbar - Partly Finished Duplex Maisonette + Roof
369,000 €
Keep default settings X
Use of cookies
This site uses cookies. Our (own) cookies and those of our Partners (third party cookies) are used to offer you a unique experience with us. For this reason, together with our partners, we collect and process non-sensitive information (such as the identifier of your device or the pages you visit).
At any time you can delete, modify or verify the information you share in
Cookie preference
or in our
Cookie Policy
and
Privacy Policy
.
Necessary
Functional
Profiling
Analytics
Accept all
Decline all
Accept selected
Cookie preference