Toggle navigation
(+356) 2164 9500
(+356) 9998 6779
info@sensaramalta.com
Head Office - Sensara Malta
Triq Santa Marija, Safi
09.00 to 19.00 hrs
Monday to Saturday
Home
Properties
Sales
Rentals
Foreign
About us
Services
Contacts
Send your request
Previous
Next
456,000 €
CLICK HERE for DETAILED PHOTOS
Swieqi - Elevated Ground Floor Fully Finished 3 Bedroom Maisonette + Yard + Optional Garage
Maisonette for sale • Swieqi
New development in the heart of Swieqi is currently under construction.
This project consists of 3 blocks, each having 2 maisonettes at the elevated ground floor, 6 apartments, and 2 penthouses.
All units are being offered fully finished, including bathrooms and internal doors. Also, optional garages starting from 52k.
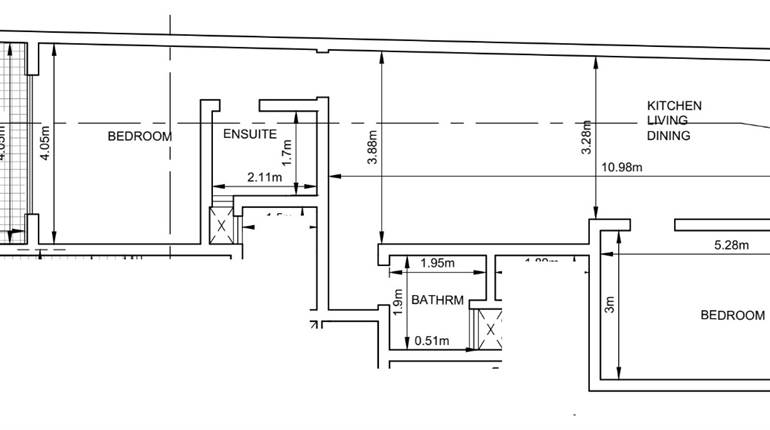
This elevated maisonette consists of a front private terrace, a squarish open plan, 3 double bedrooms, on the side of which the main bedroom is also served with a balcony and ensuit and walk-in, a master bathroom, a box room, and a back yard.
Freehold.
Rooms and Features
Code
V021772
Locality
Swieqi
Property type
Maisonette
Price
456,000 €
Locals
1
Bedrooms
3
Bathrooms
2
Sqm
164
Terraces
1
sqm Terrace
45
Floor
Mezzanine
Energetic class
Not applicable
Property Conditions
Under Construction
Photos • Floorplans • Video
Photos
Options
Print Property sheet
Send property sheet by mail
Schedule a visit
RealEstate Brokers
Schembri Maria Pawla
+356 7732 8183
+356 9998 6779
+356 9998 6775
pawla@sensaramalta.com
Information request
Name *
Phone *
E-mail *
Request Details *
I authorize the processing of my personal data according Regolamento UE n. 679/2016 -
Privacy Policy
I authorize the processing of data for marketing purposes, promotional activities, commercial offers and market surveys.
Send
Share on
We also recommend
for Sale
Marsascala - 2 Bedroom Elevated Ground Floor Maisonette + Opt. 2 car Garage
482,000 €
for Sale
Zabbar - 2 Bedroom Elevated GF Maisonette - On Plan - Finished
330,000 €
for Sale
Marsa - First Floor Maisonette + Airspace + Garage
287,000 €
Keep default settings X
Use of cookies
This site uses cookies. Our (own) cookies and those of our Partners (third party cookies) are used to offer you a unique experience with us. For this reason, together with our partners, we collect and process non-sensitive information (such as the identifier of your device or the pages you visit).
At any time you can delete, modify or verify the information you share in
Cookie preference
or in our
Cookie Policy
and
Privacy Policy
.
Necessary
Functional
Profiling
Analytics
Accept all
Decline all
Accept selected
Cookie preference