Toggle navigation
(+356) 2164 9500
(+356) 9998 6779
info@sensaramalta.com
Head Office - Sensara Malta
Triq Santa Marija, Safi
09.00 to 19.00 hrs
Monday to Saturday
Home
Properties
Sales
Rentals
Foreign
About us
Services
Contacts
Send your request
Previous
Next
368,500 €
CLICK HERE for DETAILED PHOTOS
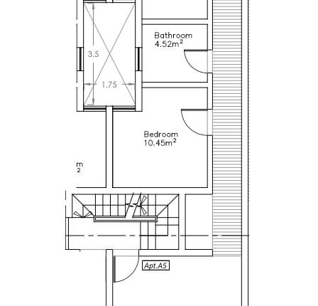
Safi - 3 Bedroom Finished Apartment On Plan
3+ bedroom apartment for sale • Safi
A three-bedroom Apartment being offered on plan, with construction works about to start soon. This apartment will be sold finished including bathrooms and doors.
This layout includes an open plan kitchen/dining/living with a front terrace which leads to a corridor, on the left hand side one find the main bathroom, master bedroom with ensuite and at the end of the corridor, there are two additional bedrooms, both enjoying access to a back balcony.
The block is served with a lift and is ideal for families or as a rental investment.
Optional garages are available at an extra price.
Freehold
Rooms and Features
Code
V022038
Locality
Safi
Property type
3+ bedroom apartment
Price
368,500 €
Locals
1
Bedrooms
3
Bathrooms
2
Sqm
125
Balconies
2
Floor
1
Energetic class
Nondescript
Photos • Floorplans • Video
Photos
Options
Print Property sheet
Send property sheet by mail
Schedule a visit
RealEstate Brokers
Zahra Gaynor
+356 7933 5643
+356 9998 6775
+356 9998 6779
gaynor@sensaramalta.com
Information request
Name *
Phone *
E-mail *
Request Details *
I authorize the processing of my personal data according Regolamento UE n. 679/2016 -
Privacy Policy
I authorize the processing of data for marketing purposes, promotional activities, commercial offers and market surveys.
Send
Share on
We also recommend
for Sale
Birkirkara - 3 Bedroom Larger Than Usual Apartment
366,500 €
for Sale
Mosta, Already Built ** Finished 2 Bedroom + Study Apartment with Terrace and optional Garages
363,500 €
for Sale
Marsascala - 3 Bedroom Apartment + Seaviews
550,000 €
Keep default settings X
Use of cookies
This site uses cookies. Our (own) cookies and those of our Partners (third party cookies) are used to offer you a unique experience with us. For this reason, together with our partners, we collect and process non-sensitive information (such as the identifier of your device or the pages you visit).
At any time you can delete, modify or verify the information you share in
Cookie preference
or in our
Cookie Policy
and
Privacy Policy
.
Necessary
Functional
Profiling
Analytics
Accept all
Decline all
Accept selected
Cookie preference