Toggle navigation
(+356) 2164 9500
(+356) 9998 6779
info@sensaramalta.com
Head Office - Sensara Malta
Triq Santa Marija, Safi
09.00 to 19.00 hrs
Monday to Saturday
Home
Properties
Sales
Rentals
Foreign
About us
Services
Contacts
Send your request
Previous
Next
425,000 €
CLICK HERE for DETAILED PHOTOS
Balzan - 2 Bedroom Penthouse +Roof+Airspace
Penthouse for sale • Balzan
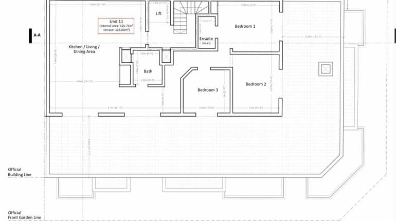
Within Balzan comes this opportunity to acquire this ready-built, circa 176 sqm, 2-bedroom penthouse situated on Level 4. This property is being offered in shell form with all common parts ready.
It comprises an open-plan kitchen, living, and dining area overlooking a terrace. One also finds a main bathroom and two bedrooms, one of which has its own private ensuite. Full Roof and Airspace
Level -1
Optional Motor space, circa 7.14 sqm at €14,000
Optional Garage, circa 17.91 €49,000
Estimated total completion of works by December 2025
Rooms and Features
Code
V022144
Locality
Balzan
Property type
Penthouse
Price
425,000 €
Locals
2
Bedrooms
2
Bathrooms
2
Sqm
176
Terraces
1
Energetic class
Nondescript
Property Conditions
Under Construction
Photos • Floorplans • Video
Photos
Options
Print Property sheet
Send property sheet by mail
Schedule a visit
RealEstate Brokers
Hughes Jeffrey
+356 9980 0004
+356 9998 6779
+356 9998 6775
hughes@sensaramalta.com
Information request
Name *
Phone *
E-mail *
Request Details *
I authorize the processing of my personal data according Regolamento UE n. 679/2016 -
Privacy Policy
I authorize the processing of data for marketing purposes, promotional activities, commercial offers and market surveys.
Send
Share on
We also recommend
for Sale
Attard - 2 Bedroom Fully Finished Penthouse
435,500 €
for Sale
Birzebbugia - 2 Bedroom Penthouse On Plan
360,000 €
for Sale
Marsascala - A Massive 249 sqm Corner 3 Bedroom Penthouse
594,000 €
Keep default settings X
Use of cookies
This site uses cookies. Our (own) cookies and those of our Partners (third party cookies) are used to offer you a unique experience with us. For this reason, together with our partners, we collect and process non-sensitive information (such as the identifier of your device or the pages you visit).
At any time you can delete, modify or verify the information you share in
Cookie preference
or in our
Cookie Policy
and
Privacy Policy
.
Necessary
Functional
Profiling
Analytics
Accept all
Decline all
Accept selected
Cookie preference