Toggle navigation
(+356) 2164 9500
(+356) 9998 6779
info@sensaramalta.com
Head Office - Sensara Malta
Triq Santa Marija, Safi
09.00 to 19.00 hrs
Monday to Saturday
Home
Properties
Sales
Rentals
Foreign
About us
Services
Contacts
Send your request
Previous
Next
563,500 €
CLICK HERE for DETAILED PHOTOS
Zurrieq - 158sqm 3 Bedroom Finished Penthouse + Airspace + Optional Garage
Penthouse for sale • Zurrieq
This square meter is hard to come by and now, due to new measures these types of projects will be impossible to find. So grab this opportunity , a decent livable home at a reasonable price.
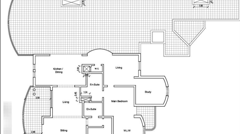
In a small , residential block of only 3 apartments and 1 penthouse ( one unit per floor ) comes this highly finished 3 double bedrooms penthouse .
The layout consist of a large front open plan over looking front terrace, 3 double bedrooms - main served with ensuit and 2nd with walk in , master bathroom and back balcony.
Complimenting this property is the full roof and airspace which is accessible from the same stairs and not from a hatch .
Optional 2 car garage opposite the ramp at 82k
Freehold.
Rooms and Features
Code
V022249
Locality
Zurrieq
Property type
Penthouse
Price
563,500 €
Locals
1
Bedrooms
3
Bathrooms
2
Sqm
158.8
Balconies
1
Terraces
1
Floor
4
Energetic class
Not applicable
Property Conditions
New
Photos • Floorplans • Video
Photos
Options
Print Property sheet
Send property sheet by mail
Schedule a visit
RealEstate Brokers
Schembri Maria Pawla
+356 7732 8183
+356 9998 6779
+356 9998 6775
pawla@sensaramalta.com
Information request
Name *
Phone *
E-mail *
Request Details *
I authorize the processing of my personal data according Regolamento UE n. 679/2016 -
Privacy Policy
I authorize the processing of data for marketing purposes, promotional activities, commercial offers and market surveys.
Send
Share on
We also recommend
for Sale
Rabat - 3 Bedroom Finished Luxurious Penthouse + Pool + Terrace + Views
3,200,000 €
for Sale
Birkirkara - Already Built 3 Bedroom Finished Penthouse With Pool + Airspace + Garage
564,000 €
for Sale
Fgura - 2 Bedroom Penthouse + Airspace - On Plan
308,000 €
Keep default settings X
Use of cookies
This site uses cookies. Our (own) cookies and those of our Partners (third party cookies) are used to offer you a unique experience with us. For this reason, together with our partners, we collect and process non-sensitive information (such as the identifier of your device or the pages you visit).
At any time you can delete, modify or verify the information you share in
Cookie preference
or in our
Cookie Policy
and
Privacy Policy
.
Necessary
Functional
Profiling
Analytics
Accept all
Decline all
Accept selected
Cookie preference