Toggle navigation
(+356) 2164 9500
(+356) 9998 6779
info@sensaramalta.com
Head Office - Sensara Malta
Triq Santa Marija, Safi
09.00 to 19.00 hrs
Monday to Saturday
Home
Properties
Sales
Rentals
Foreign
About us
Services
Contacts
Send your request
Previous
Next
358,500 €
CLICK HERE for DETAILED PHOTOS
Qormi - 3 Bedroom Finished Penthouse
Penthouse for sale • Qormi
In a central part of Qormi comes this ready built, finished penthouse, close to all amenities.
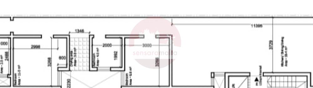
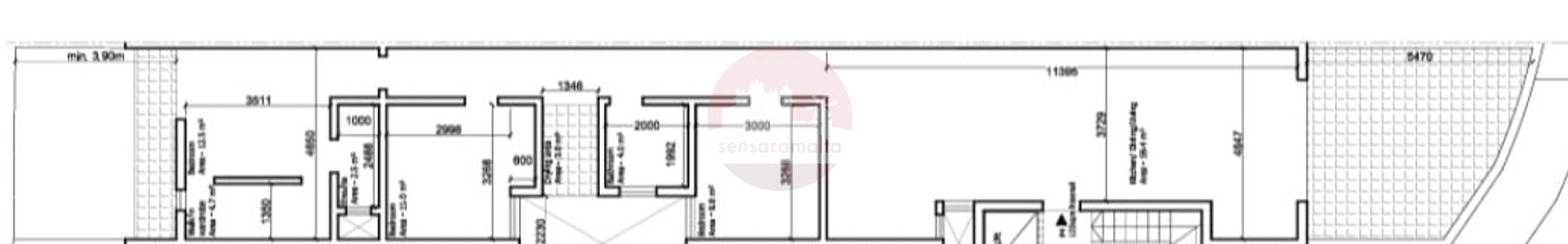
Layout: Upon entering one finds a 59 sqm of open plan kitchen, living and dining space combined with a 20sqm front terrace. The property hosts 3 double bedrooms (one with ensuite and walk in, leading to the back balcony), main bathroom and a drying area.
Offered finished excluding bathrooms and doors, having its own airspace and Freehold.
Rooms and Features
Code
V022279
Locality
Qormi
Property type
Penthouse
Price
358,500 €
Locals
1
Bedrooms
3
Bathrooms
2
Sqm
140
Balconies
1
Terraces
1
Floor
4
Energetic class
Nondescript
Photos • Floorplans • Video
Photos
Options
Print Property sheet
Send property sheet by mail
Schedule a visit
RealEstate Brokers
Caruana Dylan
+356 9960 6829
+356 9998 6779
+356 2164 9500
dylan@sensaramalta.com
Information request
Name *
Phone *
E-mail *
Request Details *
I authorize the processing of my personal data according Regolamento UE n. 679/2016 -
Privacy Policy
I authorize the processing of data for marketing purposes, promotional activities, commercial offers and market surveys.
Send
Share on
We also recommend
for Sale
St Paul's Bay - 2 Bedroom Finished Penthouse - Airspace - Spacious Terrace
318,000 €
for Sale
Zurrieq - 3 Bedroom Finished Penthouse On Plan
480,000 €
for Sale
Birkirkara - 3 Bedroom Finished Penthouse With Pool+Airspace Ready Built
590,000 €
Keep default settings X
Use of cookies
This site uses cookies. Our (own) cookies and those of our Partners (third party cookies) are used to offer you a unique experience with us. For this reason, together with our partners, we collect and process non-sensitive information (such as the identifier of your device or the pages you visit).
At any time you can delete, modify or verify the information you share in
Cookie preference
or in our
Cookie Policy
and
Privacy Policy
.
Necessary
Functional
Profiling
Analytics
Accept all
Decline all
Accept selected
Cookie preference