Toggle navigation
(+356) 2164 9500
(+356) 9998 6779
info@sensaramalta.com
Head Office - Sensara Malta
Triq Santa Marija, Safi
09.00 to 19.00 hrs
Monday to Saturday
Home
Properties
Sales
Rentals
Foreign
About us
Services
Contacts
Send your request
Previous
Next
353,500 €
CLICK HERE for DETAILED PHOTOS
Kirkop - 2 Bedroom Finished Penthouse + Airspace
Penthouse for sale • Kirkop
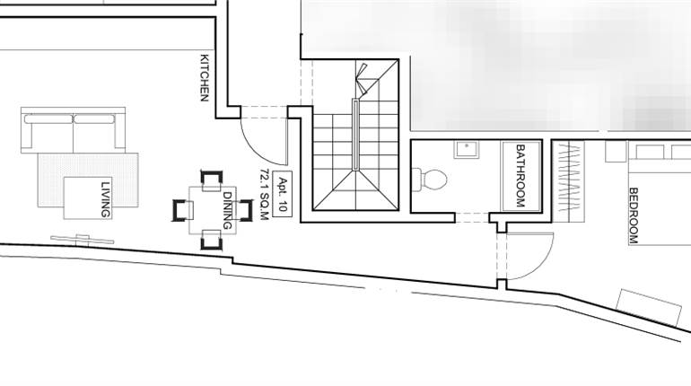
Situated in a residential area in the small village of Kirkop. The property sits on the 4th floor in a block of 12 units ( 3 units on each floor ), boasting the privacy that this property is a private service shaft ( no 3rd parties on he same floor level using the same shaft ).
The layout consists of 2 double bedrooms, of which the main is served with en-suite / laundry room or walk-in, master bathroom, and a circa 28 sqm open plan overlooking the front terrace from where one can enjoy unobstructed country views.
The penthouse is being offered finished without bathrooms and internal doors
Complimenting the property is an optional interconnected 1-car garage, which is being offered starting from 45k .
Freehold.
Rooms and Features
Code
V022487
Locality
Kirkop
Property type
Penthouse
Price
353,500 €
Locals
1
Bedrooms
2
Bathrooms
2
Sqm
101
Terraces
1
Floor
4
Energetic class
Not applicable
Property Conditions
New
Accessories:
Double Glazing
Photos • Floorplans • Video
Photos
Options
Print Property sheet
Send property sheet by mail
Schedule a visit
RealEstate Brokers
Schembri Maria Pawla
+356 7732 8183
+356 9998 6779
+356 9998 6775
pawla@sensaramalta.com
Information request
Name *
Phone *
E-mail *
Request Details *
I authorize the processing of my personal data according Regolamento UE n. 679/2016 -
Privacy Policy
I authorize the processing of data for marketing purposes, promotional activities, commercial offers and market surveys.
Send
Share on
We also recommend
for Sale
Mgarr - 142 sqm Finished 3 Bedroom Penthouse + Optional Garage
568,500 €
for Sale
Xghajra - 1 Bedroom Finished Penthouse On Plan
251,000 €
for Sale
Iklin - 1 Bedroom Fully Finished Penthouse
358,500 €
Keep default settings X
Use of cookies
This site uses cookies. Our (own) cookies and those of our Partners (third party cookies) are used to offer you a unique experience with us. For this reason, together with our partners, we collect and process non-sensitive information (such as the identifier of your device or the pages you visit).
At any time you can delete, modify or verify the information you share in
Cookie preference
or in our
Cookie Policy
and
Privacy Policy
.
Necessary
Functional
Profiling
Analytics
Accept all
Decline all
Accept selected
Cookie preference