Toggle navigation
(+356) 2164 9500
(+356) 9998 6779
info@sensaramalta.com
Head Office - Sensara Malta
Triq Santa Marija, Safi
09.00 to 19.00 hrs
Monday to Saturday
Home
Properties
Sales
Rentals
Foreign
About us
Services
Contacts
Send your request
Previous
Next
472,000 €
CLICK HERE for DETAILED PHOTOS
Zurrieq - 3 Bedroom Finished Ready Built Penthouse
Penthouse for sale • Zurrieq
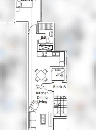
In the village of Zurrieq comes this three-bedroom penthouse in a ready built highly finished development,
Being offered finished (excluding bathrooms and internal doors).
Upon entering one finds an open plan kitchen/dining/living with a front terrace leading to a hallway with a main bathroom, box room, bedroom on the right hand side and a master bedroom with ensuite and a back terrace at the end.
Optional Garages are available at an extra price.
Freehold
Rooms and Features
Code
V022656
Locality
Zurrieq
Property type
Penthouse
Price
472,000 €
Locals
1
Bedrooms
3
Bathrooms
2
Sqm
142
Terraces
2
Floor
5
Energetic class
Nondescript
Photos • Floorplans • Video
Photos
Options
Print Property sheet
Send property sheet by mail
Schedule a visit
RealEstate Brokers
Zammit Raisa
+356 7730 2130
+356 9998 6779
+356 9998 6775
raisa@sensaramalta.com
Information request
Name *
Phone *
E-mail *
Request Details *
I authorize the processing of my personal data according Regolamento UE n. 679/2016 -
Privacy Policy
I authorize the processing of data for marketing purposes, promotional activities, commercial offers and market surveys.
Send
Share on
We also recommend
for Sale
Attard - 2 Bedroom Fully Finished Penthouse
471,000 €
for Sale
St Venera - 1 Bedroom Ready Built Finished Penthouse
275,000 €
for Sale
Mosta - 3 Bedroom Finished Penthouse On Plan
575,000 €
Keep default settings X
Use of cookies
This site uses cookies. Our (own) cookies and those of our Partners (third party cookies) are used to offer you a unique experience with us. For this reason, together with our partners, we collect and process non-sensitive information (such as the identifier of your device or the pages you visit).
At any time you can delete, modify or verify the information you share in
Cookie preference
or in our
Cookie Policy
and
Privacy Policy
.
Necessary
Functional
Profiling
Analytics
Accept all
Decline all
Accept selected
Cookie preference