Toggle navigation
(+356) 2164 9500
(+356) 9998 6779
info@sensaramalta.com
Head Office - Sensara Malta
Triq Santa Marija, Safi
09.00 to 19.00 hrs
Monday to Saturday
Home
Properties
Sales
Rentals
Foreign
About us
Services
Contacts
Send your request
Previous
Next
358,500 €
CLICK HERE for DETAILED PHOTOS
San Pawl il- Bahar - Duplex 2 Bedroom Finished Penthouse + Side Sea Views
Penthouse for sale • San Pawl il-Bahar
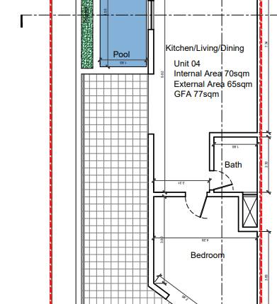
Currently, on the plan is this 2-bedroom duplex penthouse, walking distance from Bugibba Square. This penthouse is being offered in a highly finished state, excluding the bathroom and internal door. Construction is scheduled to start in approximately March 2026.
Situated on the 6th floor, this property's layout consists of two bedrooms, a master bathroom, and a front balcony. From an internal staircase, one can access the 7th floor - one will find an open-plan area served by a terrace (with a side sea view), and another bathroom.
The property is being offered with its full airspace.
Freehold.
Rooms and Features
Code
V022906
Locality
San Pawl il-Bahar
Property type
Penthouse
Price
358,500 €
Locals
1
Bedrooms
2
Bathrooms
2
Sqm
130.6
Balconies
1
Terraces
1
Floor
6
Energetic class
Not applicable
Property Conditions
Next Realization
Photos • Floorplans • Video
Photos
Options
Print Property sheet
Send property sheet by mail
Schedule a visit
RealEstate Brokers
Schembri Maria Pawla
+356 7732 8183
+356 9998 6779
+356 9998 6775
pawla@sensaramalta.com
Information request
Name *
Phone *
E-mail *
Request Details *
I authorize the processing of my personal data according Regolamento UE n. 679/2016 -
Privacy Policy
I authorize the processing of data for marketing purposes, promotional activities, commercial offers and market surveys.
Send
Share on
We also recommend
for Sale
Birkirkara - 3 Bedroom Furnished Penthouse + Roof + Opt Garage
512,000 €
for Sale
Pieta - 1 Bedroom Finished Penthouse Under Construction
318,000 €
for Sale
Marsaxlokk - 1 Bedroom Finished Penthouse + Pool On Plan
375,945 €
Keep default settings X
Use of cookies
This site uses cookies. Our (own) cookies and those of our Partners (third party cookies) are used to offer you a unique experience with us. For this reason, together with our partners, we collect and process non-sensitive information (such as the identifier of your device or the pages you visit).
At any time you can delete, modify or verify the information you share in
Cookie preference
or in our
Cookie Policy
and
Privacy Policy
.
Necessary
Functional
Profiling
Analytics
Accept all
Decline all
Accept selected
Cookie preference