Toggle navigation
(+356) 2164 9500
(+356) 9998 6779
info@sensaramalta.com
Head Office - Sensara Malta
Triq Santa Marija, Safi
09.00 to 19.00 hrs
Monday to Saturday
Home
Properties
Sales
Rentals
Foreign
About us
Services
Contacts
Send your request
Previous
Next
409,500 €
CLICK HERE for DETAILED PHOTOS
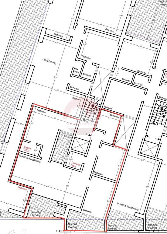
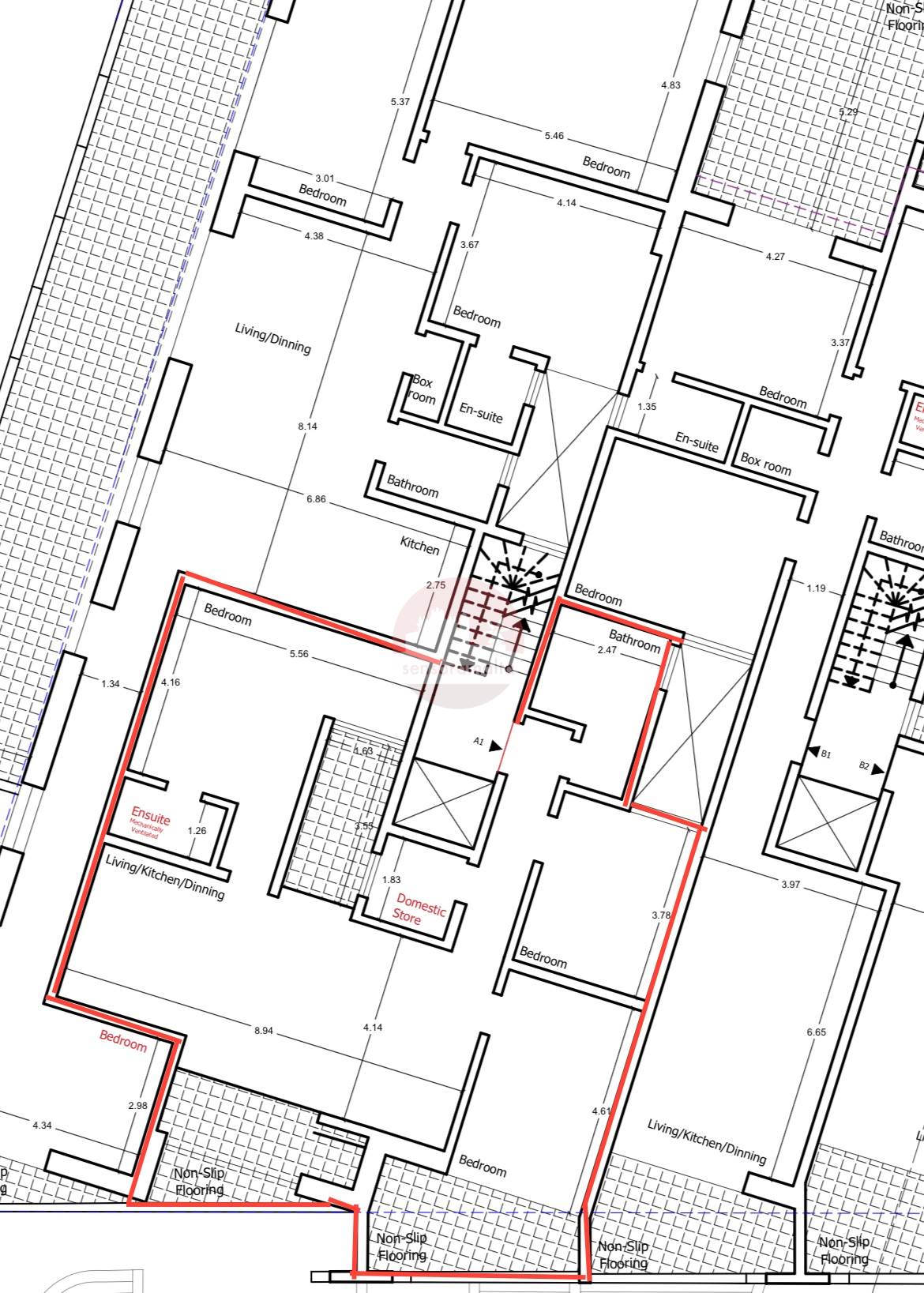
Ghadira - 1st Floor 3 Bedroom Apartment
3+ bedroom apartment for sale • Mellieha
Seconds away from the sea in Ghadira comes a highly finished first floor, three bedroom apartment being offered finished excluding bathrooms and internal doors.
Upon entering one finds a kitchen/living/dining/terrace, domestic store, bedroom with a terrace, master bedroom ensuite, internal yard, main bathroom, two additional bedrooms.
Optional garages.
Freehold
Rooms and Features
Code
V022991
Locality
Mellieha
Property type
3+ bedroom apartment
Price
409,500 €
Locals
1
Bedrooms
3
Bathrooms
2
Sqm
141
Balconies
2
Energetic class
Not applicable
Photos • Floorplans • Video
Photos
Options
Print Property sheet
Send property sheet by mail
Schedule a visit
RealEstate Brokers
Micallef Grimaud Emmanuel
+356 9990 6202
+356 9998 6779
+356 9998 6775
info@sensaramalta.com
Information request
Name *
Phone *
E-mail *
Request Details *
I authorize the processing of my personal data according Regolamento UE n. 679/2016 -
Privacy Policy
I authorize the processing of data for marketing purposes, promotional activities, commercial offers and market surveys.
Send
Share on
We also recommend
for Sale
Gozo Sannat: 9 bedroom FARMHOUSE/POOL/JACUZZI/UCA
1,200,000 €
for Sale
Santa Marija Estate - 3 Bedroom Ground Floor Fully Finished Apartment
1,750,000 €
for Sale
Zebbiegh - First Floor 3 Bedroom Finished Apartment
590,000 €
Keep default settings X
Use of cookies
This site uses cookies. Our (own) cookies and those of our Partners (third party cookies) are used to offer you a unique experience with us. For this reason, together with our partners, we collect and process non-sensitive information (such as the identifier of your device or the pages you visit).
At any time you can delete, modify or verify the information you share in
Cookie preference
or in our
Cookie Policy
and
Privacy Policy
.
Necessary
Functional
Profiling
Analytics
Accept all
Decline all
Accept selected
Cookie preference