Toggle navigation
(+356) 2164 9500
(+356) 9998 6779
info@sensaramalta.com
Head Office - Sensara Malta
Triq Santa Marija, Safi
09.00 to 19.00 hrs
Monday to Saturday
Home
Properties
Sales
Rentals
Foreign
About us
Services
Contacts
Send your request
Previous
Next
480,000 €
CLICK HERE for DETAILED PHOTOS
Bahrija - 3 Bedroom 2nd Floor Finished Apartment On Plan
3+ bedroom apartment for sale • Bahrija
FURTHUR REDUCTIONS FOR SENSARA MALTA CLIENTS!!!
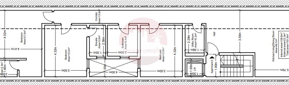
Located in the quiet village of Bahrija comes this three-bedroom 2nd floor, finished apartment currently available on plan.
This apartment offers circa 182 sqm of living space and occupies an entire floor in a block of only 4 units.
Consists of an open plan kitchen/dining/living with a front terrace, a laundry room, main bathroom, three double bedrooms (2 of them with ensuite and the main has it's own private balcony).
This apartment is being offered finished(excluding bathrooms and doors) and is estimate to be completed by the of 2026.
Rooms and Features
Code
V023001
Locality
Bahrija
Property type
3+ bedroom apartment
Price
480,000 €
Locals
1
Bedrooms
3
Bathrooms
3
Sqm
182
Balconies
1
Terraces
1
Floor
2
Energetic class
Nondescript
Photos • Floorplans • Video
Photos
Options
Print Property sheet
Send property sheet by mail
Schedule a visit
RealEstate Brokers
Grima Keith
+356 7902 0587
+356 9998 6775
+356 9998 6779
keith@sensaramalta.com
Information request
Name *
Phone *
E-mail *
Request Details *
I authorize the processing of my personal data according Regolamento UE n. 679/2016 -
Privacy Policy
I authorize the processing of data for marketing purposes, promotional activities, commercial offers and market surveys.
Send
Share on
We also recommend
for Sale
Ghaxaq - Large 3 Bedroom Duplex Apt + Terrace
482,000 €
for Sale
Gharb -Brand New Fully Detached Villa+Pool + Views
3,100,000 €
for Sale
Marsascala - 3 Bedroom 2nd Floor Finished Apartment Ready Built
360,000 €
Keep default settings X
Use of cookies
This site uses cookies. Our (own) cookies and those of our Partners (third party cookies) are used to offer you a unique experience with us. For this reason, together with our partners, we collect and process non-sensitive information (such as the identifier of your device or the pages you visit).
At any time you can delete, modify or verify the information you share in
Cookie preference
or in our
Cookie Policy
and
Privacy Policy
.
Necessary
Functional
Profiling
Analytics
Accept all
Decline all
Accept selected
Cookie preference