Toggle navigation
(+356) 2164 9500
(+356) 9998 6779
info@sensaramalta.com
Head Office - Sensara Malta
Triq Santa Marija, Safi
09.00 to 19.00 hrs
Monday to Saturday
Home
Properties
Sales
Rentals
Foreign
About us
Services
Contacts
Send your request
Previous
Next
443,000 €
CLICK HERE for DETAILED PHOTOS
Mellieha Ghadira – 2 Bedroom Highly Finished Apartment
2 bedroom apartment for sale • Mellieha
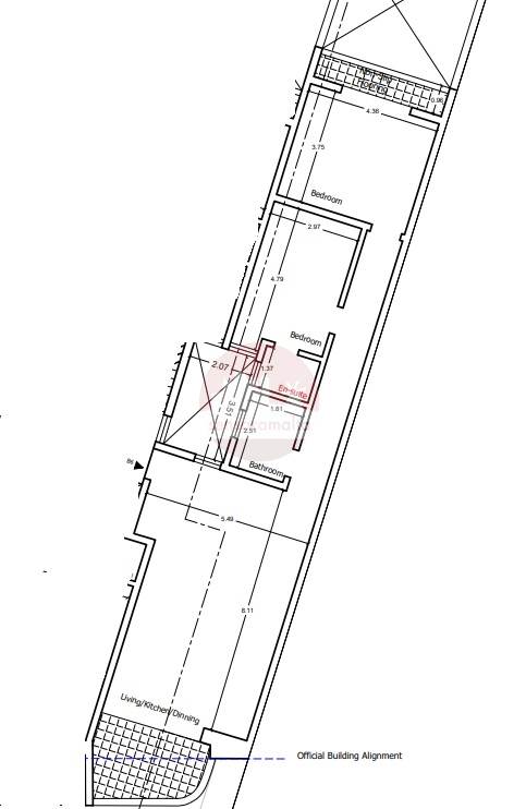
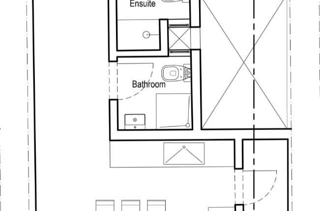
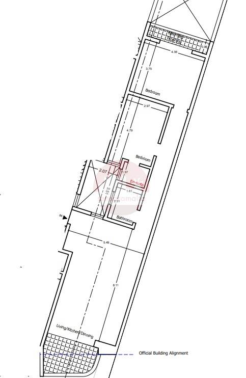
Located just seconds from the sea, this third-floor apartment offers modern living in one of Ghadira’s most desirable areas. The property which is on the third floor, is being sold highly finished, excluding bathrooms and internal doors, and is freehold.
The layout comprises a bright and spacious open-plan living, kitchen, and dining area leading onto a front terrace that enjoys beautiful sea views. Further accommodation includes a main bathroom and two double bedrooms, one with an ensuite and the other with a back balcony.
Optional interconnected garages are also available.
Rooms and Features
Code
V023026
Locality
Mellieha
Property type
2 bedroom apartment
Price
443,000 €
Locals
1
Bedrooms
2
Bathrooms
2
Sqm
118
Balconies
1
Floor
3
Energetic class
Not applicable
Property Conditions
New
Accessories:
Double Glazing
Photos • Floorplans • Video
Photos
Options
Print Property sheet
Send property sheet by mail
Schedule a visit
RealEstate Brokers
Hughes Jeffrey
+356 9980 0004
+356 9998 6779
+356 9998 6775
hughes@sensaramalta.com
Information request
Name *
Phone *
E-mail *
Request Details *
I authorize the processing of my personal data according Regolamento UE n. 679/2016 -
Privacy Policy
I authorize the processing of data for marketing purposes, promotional activities, commercial offers and market surveys.
Send
Share on
We also recommend
for Sale
Swieqi - 1st Floor Fully Finished 2 Bedroom Apartment + Optional Garage
395,000 €
for Sale
Tarxien - 2 Bedroom Ground Floor Apartment Finished + Back Terrace
246,000 €
for Sale
Bugibba - 2 Bedroom Finished Apartment
330,000 €
Keep default settings X
Use of cookies
This site uses cookies. Our (own) cookies and those of our Partners (third party cookies) are used to offer you a unique experience with us. For this reason, together with our partners, we collect and process non-sensitive information (such as the identifier of your device or the pages you visit).
At any time you can delete, modify or verify the information you share in
Cookie preference
or in our
Cookie Policy
and
Privacy Policy
.
Necessary
Functional
Profiling
Analytics
Accept all
Decline all
Accept selected
Cookie preference