Toggle navigation
(+356) 2164 9500
(+356) 9998 6779
info@sensaramalta.com
Head Office - Sensara Malta
Triq Santa Marija, Safi
09.00 to 19.00 hrs
Monday to Saturday
Home
Properties
Sales
Rentals
Foreign
About us
Services
Contacts
Send your request
Previous
Next
362,000 €
CLICK HERE for DETAILED PHOTOS
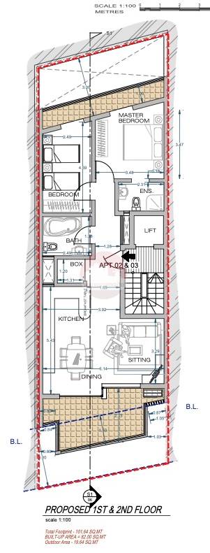
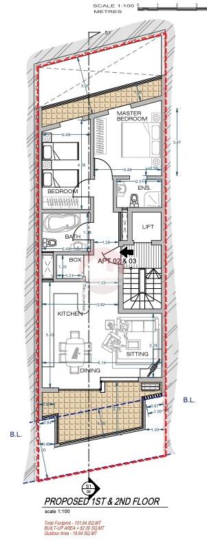
Swatar - 2 Bedroom First Floor Apartment ON PLAN
2 bedroom apartment for sale • Swatar
In the quit village of Swatar comes a 2 Bedroom Apartment located on the Second floor, which is currently on plan.
Upon entering, one finds a kitchen/living/dining, main bathroom, box room and two double bedrooms which are connected to a balcony. The master bedroom includes an ensuite bathroom. Also includes front terrace and back balcony.
This apartment is being offered finished, excluding bathrooms and internal doors
Optional garages available at an extra price.
Rooms and Features
Code
V023101
Locality
Swatar
Property type
2 bedroom apartment
Price
362,000 €
Locals
1
Bedrooms
2
Bathrooms
2
Sqm
101
Terraces
2
Energetic class
Nondescript
Photos • Floorplans • Video
Photos
Options
Print Property sheet
Send property sheet by mail
Schedule a visit
RealEstate Brokers
Caruana Dylan
+356 9960 6829
+356 9998 6779
+356 2164 9500
dylan@sensaramalta.com
Information request
Name *
Phone *
E-mail *
Request Details *
I authorize the processing of my personal data according Regolamento UE n. 679/2016 -
Privacy Policy
I authorize the processing of data for marketing purposes, promotional activities, commercial offers and market surveys.
Send
Share on
We also recommend
for Sale
Gharb Gozo - 1 Bedroom + Study Penthouse + Airspace
227,000 €
for Sale
Fgura - 2 Bedroom Apartment On Plan
238,000 €
for Sale
Zabbar - Under Construction Ground Floor 2 Bedroom Fully Finished Apartment + Yard
282,000 €
Keep default settings X
Use of cookies
This site uses cookies. Our (own) cookies and those of our Partners (third party cookies) are used to offer you a unique experience with us. For this reason, together with our partners, we collect and process non-sensitive information (such as the identifier of your device or the pages you visit).
At any time you can delete, modify or verify the information you share in
Cookie preference
or in our
Cookie Policy
and
Privacy Policy
.
Necessary
Functional
Profiling
Analytics
Accept all
Decline all
Accept selected
Cookie preference