Toggle navigation
(+356) 2164 9500
(+356) 9998 6779
info@sensaramalta.com
Head Office - Sensara Malta
Triq Santa Marija, Safi
09.00 to 19.00 hrs
Monday to Saturday
Home
Properties
Sales
Rentals
Foreign
About us
Services
Contacts
Send your request
Previous
Next
280,000 €
CLICK HERE for DETAILED PHOTOS
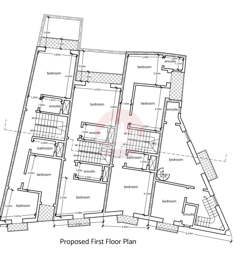
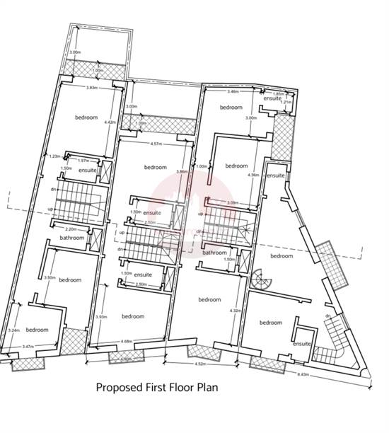
Nadur Gozo - 2/3 Bedroom Terraced Houses in UCA Area
Town House for sale • Nadur Gozo
🏡 Last Two Remaining Terraced Houses for Sale!
Don’t miss this opportunity to own one of the last two beautiful terraced houses set in a UCA area, just a short walk from all amenities and the vibrant village square.
✨ House No. 2
€330,000
Three bedrooms
167 sqm internal area
46 sqm external area
Includes a garage
✨ House No. 4
€280,000
Two bedrooms
116 sqm internal area
57 sqm external area
Both properties are freehold and enjoy a charming location ideal for a comfortable home or a smart investment.
construction has started
Rooms and Features
Code
V023276
Locality
Nadur Gozo
Property type
Town House
Price
280,000 €
Locals
1
Energetic class
Not applicable
Photos • Floorplans • Video
Photos
Options
Print Property sheet
Send property sheet by mail
Schedule a visit
RealEstate Brokers
Xiberras Joanie
+356 9985 2678
+356 9998 6779
+356 9998 6775
joanie.gozo@sensaramalta.com
Information request
Name *
Phone *
E-mail *
Request Details *
I authorize the processing of my personal data according Regolamento UE n. 679/2016 -
Privacy Policy
I authorize the processing of data for marketing purposes, promotional activities, commercial offers and market surveys.
Send
Share on
We also recommend
for Sale
Gozo Sannat: 9 bedroom FARMHOUSE/POOL/JACUZZI/UCA
1,200,000 €
for Sale
Zabbar - 2 Bedroom Townhouse, Garage, On plan
385,000 €
for Sale
Birkirkara - Unconverted Townhouse
410,000 €
Keep default settings X
Use of cookies
This site uses cookies. Our (own) cookies and those of our Partners (third party cookies) are used to offer you a unique experience with us. For this reason, together with our partners, we collect and process non-sensitive information (such as the identifier of your device or the pages you visit).
At any time you can delete, modify or verify the information you share in
Cookie preference
or in our
Cookie Policy
and
Privacy Policy
.
Necessary
Functional
Profiling
Analytics
Accept all
Decline all
Accept selected
Cookie preference