Toggle navigation
(+356) 2164 9500
(+356) 9998 6779
info@sensaramalta.com
Head Office - Sensara Malta
Triq Santa Marija, Safi
09.00 to 19.00 hrs
Monday to Saturday
Home
Properties
Sales
Rentals
Foreign
About us
Services
Contacts
Send your request
Previous
Next
395,000 €
CLICK HERE for DETAILED PHOTOS
Mosta - 3 Bedroom 3rd Floor Finished Apartment On Plan
3+ bedroom apartment for sale • Mosta
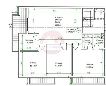
A three-bedroom, third-floor finished apartment currently available on plan in Mosta.
The property comprises an open-plan kitchen/dining/living area leading to a terrace, three double bedrooms — the master bedroom includes an en-suite and a walk-in wardrobe and all bedrooms have access to a balcony.
The apartment is being offered finished, excluding bathrooms and internal doors. Completion is estimated for mid 2026.
Optional garages are available at an extra price.
Rooms and Features
Code
V023307
Locality
Mosta
Property type
3+ bedroom apartment
Price
395,000 €
Locals
1
Bedrooms
3
Bathrooms
2
Sqm
135
Balconies
2
Terraces
1
Floor
3
Energetic class
Nondescript
Photos • Floorplans • Video
Photos
Options
Print Property sheet
Send property sheet by mail
Schedule a visit
RealEstate Brokers
Kitney Claudia
+356 9940 4319
+356 9998 6779
+356 9998 6775
claudia@sensaramalta.com
Information request
Name *
Phone *
E-mail *
Request Details *
I authorize the processing of my personal data according Regolamento UE n. 679/2016 -
Privacy Policy
I authorize the processing of data for marketing purposes, promotional activities, commercial offers and market surveys.
Send
Share on
We also recommend
for Sale
Zebbug - 3 Bed 3 Bath Fully Finished Apt (On Plan)
420,000 €
for Sale
Zejtun - 3 Bedroom Apartment On Plan
227,000 €
for Sale
Birzebbugia - 3 Bedroom Apartments
285,000 €
Keep default settings X
Use of cookies
This site uses cookies. Our (own) cookies and those of our Partners (third party cookies) are used to offer you a unique experience with us. For this reason, together with our partners, we collect and process non-sensitive information (such as the identifier of your device or the pages you visit).
At any time you can delete, modify or verify the information you share in
Cookie preference
or in our
Cookie Policy
and
Privacy Policy
.
Necessary
Functional
Profiling
Analytics
Accept all
Decline all
Accept selected
Cookie preference