Toggle navigation
(+356) 2164 9500
(+356) 9998 6779
info@sensaramalta.com
Head Office - Sensara Malta
Triq Santa Marija, Safi
09.00 to 19.00 hrs
Monday to Saturday
Home
Properties
Sales
Rentals
Foreign
About us
Services
Contacts
Send your request
Previous
Next
338,000 €
CLICK HERE for DETAILED PHOTOS
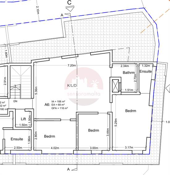
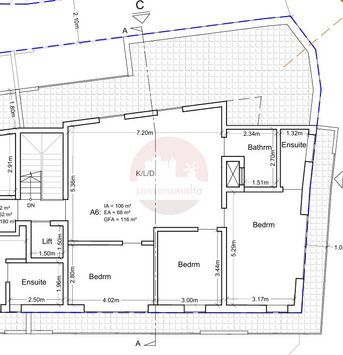
Qormi - 3 Bedroom Apartment with circa 68sqm Outdoor Space
3+ bedroom apartment for sale • Qormi
On Plan - Third Floor Apartment situated in Qormi. To be sold Finished excluding bathrooms and internal doors. Estimated to be completed by October 2026.
Consisting of an open plan Kitchen/Living/Dining overlooking a large terrace ideal for entertaining, main bathroom, Three Bedrooms of which the main has an en-suite. All Bedrooms have access to a longish corner balcony.
Optional Garages available
Freehold
Rooms and Features
Code
V023348
Locality
Qormi
Property type
3+ bedroom apartment
Price
338,000 €
Locals
1
Bedrooms
3
Bathrooms
2
Sqm
116
Balconies
1
Terraces
1
Energetic class
Nondescript
Photos • Floorplans • Video
Photos
Options
Print Property sheet
Send property sheet by mail
Schedule a visit
RealEstate Brokers
Jenkins Rita
+356 7712 7772
+356 9998 6779
+356 9998 6775
rita@sensaramalta.com
Information request
Name *
Phone *
E-mail *
Request Details *
I authorize the processing of my personal data according Regolamento UE n. 679/2016 -
Privacy Policy
I authorize the processing of data for marketing purposes, promotional activities, commercial offers and market surveys.
Send
Share on
We also recommend
for Sale
Valletta - 3 Bedroom Apartment Spectacular Views
870,000 €
for Sale
Rabat - 3 Bedroom Finished Luxurious Apartment + Pool + Terrace + Views
1 €
for Sale
Fgura - Fully Furnished 3 Bedroom Apartment
395,000 €
Keep default settings X
Use of cookies
This site uses cookies. Our (own) cookies and those of our Partners (third party cookies) are used to offer you a unique experience with us. For this reason, together with our partners, we collect and process non-sensitive information (such as the identifier of your device or the pages you visit).
At any time you can delete, modify or verify the information you share in
Cookie preference
or in our
Cookie Policy
and
Privacy Policy
.
Necessary
Functional
Profiling
Analytics
Accept all
Decline all
Accept selected
Cookie preference