Toggle navigation
(+356) 2164 9500
(+356) 9998 6779
info@sensaramalta.com
Head Office - Sensara Malta
Triq Santa Marija, Safi
09.00 to 19.00 hrs
Monday to Saturday
Home
Properties
Sales
Rentals
Foreign
About us
Services
Contacts
Send your request
Previous
Next
330,000 €
CLICK HERE for DETAILED PHOTOS
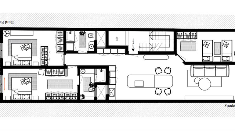
Mellieha - 1st Floor 3 Bedroom Finished Apartment + Optional Garage
3+ bedroom apartment for sale • Mellieha
Recently built in a residential area come this modern block of residential units which area already built and each unit is being served finished include bathrooms and exclude internal doors and paint.
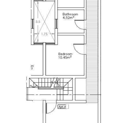
This apartment is situated on the 1st floor which its layout comprises of circa 36sqm open plan , master bathroom, internal yard, 2 double bedroom - main is served with ensuit and walk in and a study room which is also suitable to be used as the 3rd bedroom.
Optional garages are also available starting from 43k
Rooms and Features
Code
V023380
Locality
Mellieha
Property type
3+ bedroom apartment
Price
330,000 €
Locals
1
Bedrooms
3
Bathrooms
2
Sqm
90
Terraces
1
Floor
1
Energetic class
Not applicable
Property Conditions
New
Photos • Floorplans • Video
Photos
Options
Print Property sheet
Send property sheet by mail
Schedule a visit
RealEstate Brokers
Schembri Maria Pawla
+356 7732 8183
+356 9998 6779
+356 9998 6775
pawla@sensaramalta.com
Information request
Name *
Phone *
E-mail *
Request Details *
I authorize the processing of my personal data according Regolamento UE n. 679/2016 -
Privacy Policy
I authorize the processing of data for marketing purposes, promotional activities, commercial offers and market surveys.
Send
Share on
We also recommend
for Sale
Ghajnsielem Gozo - 3 Bedroom Furnished Apartment in UCA Area
355,000 €
for Sale
Mqabba - Third Floor 3 Bedroom Finished Apartment On Plan
420,000 €
for Sale
Mqabba - Second Floor 3 Bedroom Finished Apartment On Plan
410,000 €
Keep default settings X
Use of cookies
This site uses cookies. Our (own) cookies and those of our Partners (third party cookies) are used to offer you a unique experience with us. For this reason, together with our partners, we collect and process non-sensitive information (such as the identifier of your device or the pages you visit).
At any time you can delete, modify or verify the information you share in
Cookie preference
or in our
Cookie Policy
and
Privacy Policy
.
Necessary
Functional
Profiling
Analytics
Accept all
Decline all
Accept selected
Cookie preference