Toggle navigation
(+356) 2164 9500
(+356) 9998 6779
info@sensaramalta.com
Head Office - Sensara Malta
Triq Santa Marija, Safi
09.00 to 19.00 hrs
Monday to Saturday
Home
Properties
Sales
Rentals
Foreign
About us
Services
Contacts
Send your request
Previous
Next
425,000 €
CLICK HERE for DETAILED PHOTOS
Zabbar - 4 Bedroom GF Maisonette Finished - On Plan
Maisonette for sale • Zabbar
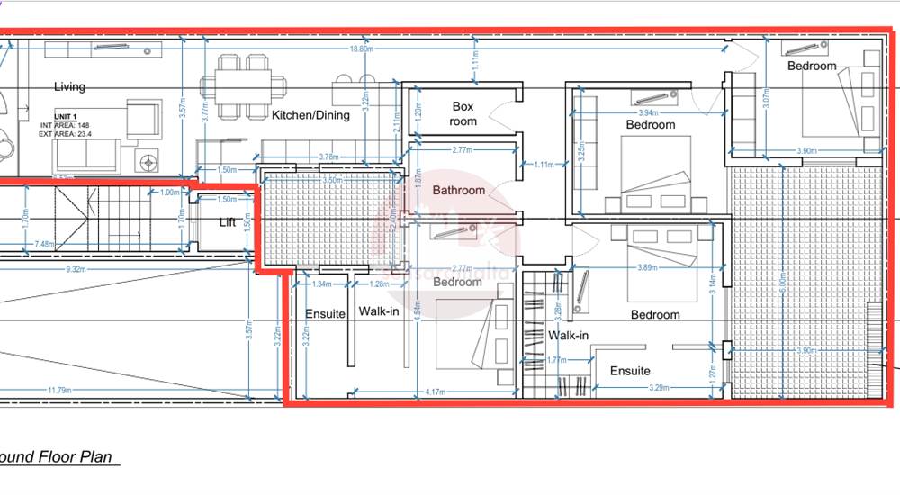
On Plan - A Beautiful and practical layout having this Ground Floor Maisonette. Estimated to be completed by Mid 2027, being offered Finished Excluding Bathrooms and Internal Doors.
Consisting of an open plan Kitchen/living/dining, a small corridor leads you to 4 double bedrooms, of which two of them are served with a private en-suite and a walk in wardrobe, the main and two of the bedrooms also have an access to the backyard, further more a Main Bathroom and a box room.
Optional Garages are also available for an additional cost.
Freehold
Rooms and Features
Code
V023463
Locality
Zabbar
Property type
Maisonette
Price
425,000 €
Locals
1
Bedrooms
4
Bathrooms
2
Sqm
171
Energetic class
Nondescript
Photos • Floorplans • Video
Photos
Options
Print Property sheet
Send property sheet by mail
Schedule a visit
RealEstate Brokers
Jenkins Rita
+356 7712 7772
+356 9998 6779
+356 9998 6775
rita@sensaramalta.com
Information request
Name *
Phone *
E-mail *
Request Details *
I authorize the processing of my personal data according Regolamento UE n. 679/2016 -
Privacy Policy
I authorize the processing of data for marketing purposes, promotional activities, commercial offers and market surveys.
Send
Share on
We also recommend
for Sale
Lija - 2 Bedroom Elevated Maisonette Finished
376,000 €
for Sale
Zejtun - 3 Bedroom Maisonette Fully Finished + Optional Garage
335,000 €
for Sale
Tarxien - 1st Floor 3 Bedroom Solitary Maisonette
630,000 €
Keep default settings X
Use of cookies
This site uses cookies. Our (own) cookies and those of our Partners (third party cookies) are used to offer you a unique experience with us. For this reason, together with our partners, we collect and process non-sensitive information (such as the identifier of your device or the pages you visit).
At any time you can delete, modify or verify the information you share in
Cookie preference
or in our
Cookie Policy
and
Privacy Policy
.
Necessary
Functional
Profiling
Analytics
Accept all
Decline all
Accept selected
Cookie preference