Toggle navigation
(+356) 2164 9500
(+356) 9998 6779
info@sensaramalta.com
Head Office - Sensara Malta
Triq Santa Marija, Safi
09.00 to 19.00 hrs
Monday to Saturday
Home
Properties
Sales
Rentals
Foreign
About us
Services
Contacts
Send your request
Previous
Next
295,000 €
CLICK HERE for DETAILED PHOTOS
Fgura - 3 Bedroom Second Floor Finished Apartment Ready Built
3+ bedroom apartment for sale • Fgura
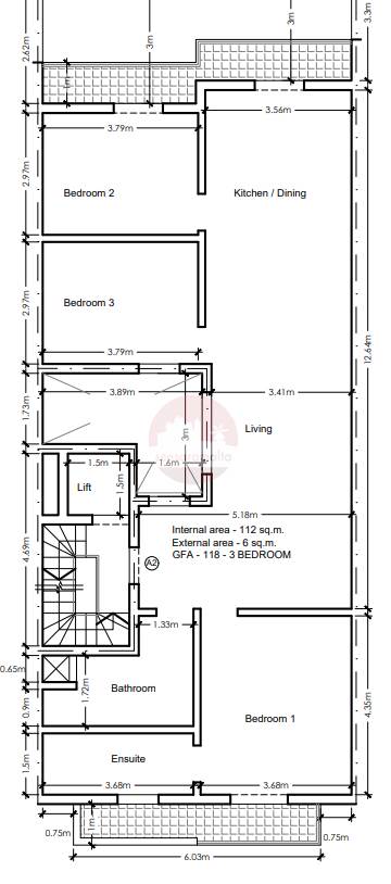
Located in a small block of only four units (one apartment per floor), this ready-built second floor, three-bedroom apartment in Fgura offers a comfortable and modern layout.
Upon entering, one finds a spacious open-plan kitchen, dining, and living area leading to a front balcony, a main bathroom, and three double bedrooms. The master bedroom includes an en-suite.
The apartment is ready built, with finishing works currently underway, and is being offered finished, excluding bathrooms and internal doors.
Rooms and Features
Code
V023482
Locality
Fgura
Property type
3+ bedroom apartment
Price
295,000 €
Locals
1
Bedrooms
3
Bathrooms
2
Sqm
118
Terraces
2
Energetic class
Nondescript
Photos • Floorplans • Video
Photos
Options
Print Property sheet
Send property sheet by mail
Schedule a visit
RealEstate Brokers
Attard Charlene
+356 9996 8105
+356 9998 6779
+356 2164 9500
charlene@sensaramalta.com
Information request
Name *
Phone *
E-mail *
Request Details *
I authorize the processing of my personal data according Regolamento UE n. 679/2016 -
Privacy Policy
I authorize the processing of data for marketing purposes, promotional activities, commercial offers and market surveys.
Send
Share on
We also recommend
for Sale
Qawra - 3 Bedroom Furnised Apartment
410,000 €
for Sale
Qala Gozo - 3 Bedroom Apartments + Views + Optional Garage
245,000 €
for Sale
St Pauls Bay - Penthouse + Airspace+Distance View
461,000 €
Keep default settings X
Use of cookies
This site uses cookies. Our (own) cookies and those of our Partners (third party cookies) are used to offer you a unique experience with us. For this reason, together with our partners, we collect and process non-sensitive information (such as the identifier of your device or the pages you visit).
At any time you can delete, modify or verify the information you share in
Cookie preference
or in our
Cookie Policy
and
Privacy Policy
.
Necessary
Functional
Profiling
Analytics
Accept all
Decline all
Accept selected
Cookie preference