Toggle navigation
(+356) 2164 9500
(+356) 9998 6779
info@sensaramalta.com
Head Office - Sensara Malta
Triq Santa Marija, Safi
09.00 to 19.00 hrs
Monday to Saturday
Home
Properties
Sales
Rentals
Foreign
About us
Services
Contacts
Send your request
Previous
Next
302,000 €
CLICK HERE for DETAILED PHOTOS
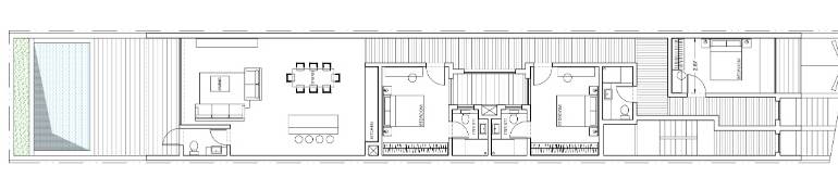
Pieta - 2 Bedroom Finished Elevated Maisonette
Maisonette for sale • Pieta
Located in Pieta, two-bedroom finished elevated maisonette, currently available on plan.
Consists of an open plan kitchen/dining/living with a front terrace, main bathroom, two double bedrooms with the master including an ensuite bathroom and a backyard.
This property is still on plan, being offered finished excluding bathrooms and internal doors.
Rooms and Features
Code
V023631
Locality
Pieta
Property type
Maisonette
Price
302,000 €
Locals
1
Bedrooms
2
Bathrooms
2
Sqm
96
Terraces
2
Floor
Ground floor
Energetic class
Nondescript
Photos • Floorplans • Video
Photos
Options
Print Property sheet
Send property sheet by mail
Schedule a visit
RealEstate Brokers
Dalli Andreas
+356 9998 6777
+356 9998 6779
+356 9998 6775
andreas@sensaramalta.com
Information request
Name *
Phone *
E-mail *
Request Details *
I authorize the processing of my personal data according Regolamento UE n. 679/2016 -
Privacy Policy
I authorize the processing of data for marketing purposes, promotional activities, commercial offers and market surveys.
Send
Share on
We also recommend
for Sale
Qormi - 3 Bedroom Finished Elevated Maisonette + Yard + Terrace + Optional Garage
364,000 €
for Sale
Hamrun - First Floor Maisonette + Large Back Garden
615,000 €
for Sale
Marsa - First Floor Maisonette + Airspace + Garage
287,000 €
Keep default settings X
Use of cookies
This site uses cookies. Our (own) cookies and those of our Partners (third party cookies) are used to offer you a unique experience with us. For this reason, together with our partners, we collect and process non-sensitive information (such as the identifier of your device or the pages you visit).
At any time you can delete, modify or verify the information you share in
Cookie preference
or in our
Cookie Policy
and
Privacy Policy
.
Necessary
Functional
Profiling
Analytics
Accept all
Decline all
Accept selected
Cookie preference