Toggle navigation
(+356) 2164 9500
(+356) 9998 6779
info@sensaramalta.com
Head Office - Sensara Malta
Triq Santa Marija, Safi
09.00 to 19.00 hrs
Monday to Saturday
Home
Properties
Sales
Rentals
Foreign
About us
Services
Contacts
Send your request
Previous
Next
420,000 €
CLICK HERE for DETAILED PHOTOS
Zejtun - 3 Bedroom Ground Floor Finished Maisonette Ready Built
Maisonette for sale • Zejtun
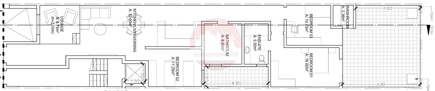
Located on the ground floor, three-bedroom finished and ready built maisonette.
The layout comprises of an open plan kitchen/dining/living, main bathroom, a washroom, an internal yard, three bedrooms and a backyard. The master bedroom includes an ensuite and is connected to the backyard, the second bedroom which is a spare bedroom is also connected to the back yard and the third bedroom is a double bedroom.
This property is ready built and is being offered finished excluding bathrooms and internal doors.
Rooms and Features
Code
V023636
Locality
Zejtun
Property type
Maisonette
Price
420,000 €
Locals
1
Bedrooms
3
Bathrooms
2
Sqm
127.25
Terraces
1
sqm Terrace
41.25
Floor
Ground floor
Energetic class
Not applicable
Property Conditions
New
Accessories:
Double Glazing, Swimming Pool
Photos • Floorplans • Video
Photos
Options
Print Property sheet
Send property sheet by mail
Schedule a visit
RealEstate Brokers
Schembri Maria Pawla
+356 7732 8183
+356 9998 6779
+356 9998 6775
pawla@sensaramalta.com
Information request
Name *
Phone *
E-mail *
Request Details *
I authorize the processing of my personal data according Regolamento UE n. 679/2016 -
Privacy Policy
I authorize the processing of data for marketing purposes, promotional activities, commercial offers and market surveys.
Send
Share on
We also recommend
for Sale
B'Kara - Highly Finished 4 Bedroom Solitary Maisonette + Garage + Roof
650,000 €
for Sale
Rabat - 3 Bedroom Elevated Maisonette Facing ODZ
448,000 €
for Sale
Swieqi - 4 Bedroom Elevated Maisonette + Pool
1,024,000 €
Keep default settings X
Use of cookies
This site uses cookies. Our (own) cookies and those of our Partners (third party cookies) are used to offer you a unique experience with us. For this reason, together with our partners, we collect and process non-sensitive information (such as the identifier of your device or the pages you visit).
At any time you can delete, modify or verify the information you share in
Cookie preference
or in our
Cookie Policy
and
Privacy Policy
.
Necessary
Functional
Profiling
Analytics
Accept all
Decline all
Accept selected
Cookie preference