Toggle navigation
(+356) 2164 9500
(+356) 9998 6779
info@sensaramalta.com
Head Office - Sensara Malta
Triq Santa Marija, Safi
09.00 to 19.00 hrs
Monday to Saturday
Home
Properties
Sales
Rentals
Foreign
About us
Services
Contacts
Send your request
Previous
Next
348,000 €
CLICK HERE for DETAILED PHOTOS
Fgura - Ground Floor 2/3 Bedroom Maisonette / Poss of Garage
Maisonette for sale • Fgura
A Ground Floor Maisonette situated in quiet area of Fgura, yet close to all amenities. This property has the potential to have an interconnected street level garage or to be converted into 3 bedroom property.
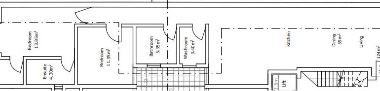
Currently Layout consisting of a large open plan as you enter the property, being used as a large Living area, Box Room, Main Bathroom, Two Double Bedrooms, and a Kitchen/Dining leading a well sized backyard.
This maisonette is habitable, however it is in need of a modernization and will make a spacious family home. Freehold
Rooms and Features
Code
V023646
Locality
Fgura
Property type
Maisonette
Price
348,000 €
Locals
1
Bedrooms
2
Bathrooms
1
Sqm
140
Terraces
1
Energetic class
Nondescript
Photos • Floorplans • Video
Photos
Options
Print Property sheet
Send property sheet by mail
Schedule a visit
RealEstate Brokers
Jenkins Rita
+356 7712 7772
+356 9998 6779
+356 9998 6775
rita@sensaramalta.com
Information request
Name *
Phone *
E-mail *
Request Details *
I authorize the processing of my personal data according Regolamento UE n. 679/2016 -
Privacy Policy
I authorize the processing of data for marketing purposes, promotional activities, commercial offers and market surveys.
Send
Share on
We also recommend
for Sale
Qala Gozo - 300sqm Large 3 Bedroom Maisonette + Backyard + Optional Garage
300,000 €
for Sale
Santa Venera - 2 Bedroom Finished, Elevated Maisonette + Pool
420,000 €
for Sale
Xaghra Gozo - 2 Bedroom + Study Maisonette
185,000 €
Keep default settings X
Use of cookies
This site uses cookies. Our (own) cookies and those of our Partners (third party cookies) are used to offer you a unique experience with us. For this reason, together with our partners, we collect and process non-sensitive information (such as the identifier of your device or the pages you visit).
At any time you can delete, modify or verify the information you share in
Cookie preference
or in our
Cookie Policy
and
Privacy Policy
.
Necessary
Functional
Profiling
Analytics
Accept all
Decline all
Accept selected
Cookie preference