Toggle navigation
(+356) 2164 9500
(+356) 9998 6779
info@sensaramalta.com
Head Office - Sensara Malta
Triq Santa Marija, Safi
09.00 to 19.00 hrs
Monday to Saturday
Home
Properties
Sales
Rentals
Foreign
About us
Services
Contacts
Send your request
Previous
Next
430,000 €
CLICK HERE for DETAILED PHOTOS
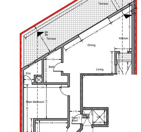
Gudja - Duplex 2 Bedroom Finished Penthouse On Plan
Penthouse for sale • Gudja
Located on in Gudja, two-bedroom finished duplex penthouse, currently available on plan.
The layout comprises of a main bathroom and two double bedrooms with the main bedroom having it's own private balcony, on the third floor. A kitchen/dining/living with a front terrace and a guest bathroom on the fourth floor.
This Penthouse is still on plan and is estimate to be completed by 2027, it is being offered finished excluding bathrooms and internal doors.
Rooms and Features
Code
V023650
Locality
Gudja
Property type
Penthouse
Price
430,000 €
Locals
1
Bedrooms
2
Bathrooms
1
Sqm
128
Balconies
1
Floor
3
Energetic class
Not applicable
Property Conditions
New
Accessories:
Double Glazing, Veranda
Photos • Floorplans • Video
Photos
Options
Print Property sheet
Send property sheet by mail
Schedule a visit
RealEstate Brokers
Schembri Maria Pawla
+356 7732 8183
+356 9998 6779
+356 9998 6775
pawla@sensaramalta.com
Information request
Name *
Phone *
E-mail *
Request Details *
I authorize the processing of my personal data according Regolamento UE n. 679/2016 -
Privacy Policy
I authorize the processing of data for marketing purposes, promotional activities, commercial offers and market surveys.
Send
Share on
We also recommend
for Sale
Siggiewi - 3 Bedroom Penthouse + Pool
574,000 €
for Sale
Birkirkara - 2 Bedroom Penthouse
410,000 €
for Sale
Rabat - 3 Bedroom Finished Luxurious Penthouse + Pool + Terrace + Views
0 €
Keep default settings X
Use of cookies
This site uses cookies. Our (own) cookies and those of our Partners (third party cookies) are used to offer you a unique experience with us. For this reason, together with our partners, we collect and process non-sensitive information (such as the identifier of your device or the pages you visit).
At any time you can delete, modify or verify the information you share in
Cookie preference
or in our
Cookie Policy
and
Privacy Policy
.
Necessary
Functional
Profiling
Analytics
Accept all
Decline all
Accept selected
Cookie preference