Toggle navigation
(+356) 2164 9500
(+356) 9998 6779
info@sensaramalta.com
Head Office - Sensara Malta
Triq Santa Marija, Safi
09.00 to 19.00 hrs
Monday to Saturday
Home
Properties
Sales
Rentals
Foreign
About us
Services
Contacts
Send your request
Previous
Next
308,000 €
CLICK HERE for DETAILED PHOTOS
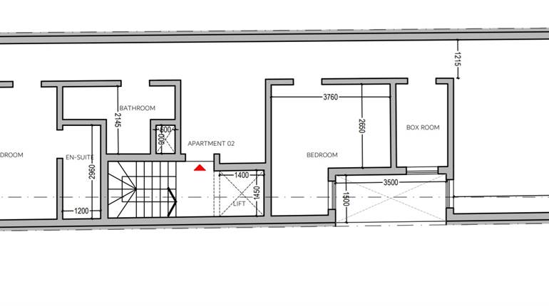
Birzebbugia - 3rd Floor 3 Bedroom Finished Apartment
3+ bedroom apartment for sale • Birzebbugia
Already built in a newly developed residential block , comes this 3 double bedrooms apartment situated on the 3rd floor in a block of 7 units .
The property is being offered finished excluding bathrooms and internal doors.
Up on entrance one will find a circa 30sqm open plan overlooking a comfortable terrace, master bathroom, 3 doubled bedroom of which main is served with ensuit.
Freehold .
Rooms and Features
Code
V023693
Locality
Birzebbugia
Property type
3+ bedroom apartment
Price
308,000 €
Locals
1
Bedrooms
3
Bathrooms
2
Sqm
120
Terraces
1
Floor
3
Energetic class
Not applicable
Property Conditions
New
Accessories:
Double Glazing, Veranda
Photos • Floorplans • Video
Photos
Options
Print Property sheet
Send property sheet by mail
Schedule a visit
RealEstate Brokers
Schembri Maria Pawla
+356 7732 8183
+356 9998 6779
+356 9998 6775
pawla@sensaramalta.com
Information request
Name *
Phone *
E-mail *
Request Details *
I authorize the processing of my personal data according Regolamento UE n. 679/2016 -
Privacy Policy
I authorize the processing of data for marketing purposes, promotional activities, commercial offers and market surveys.
Send
Share on
We also recommend
for Sale
Zebbiegh - 3 Bdr Ground Floor Fully Finished Apt
430,000 €
for Sale
Luqa - 3 Bed,2 Bath Finished 1St Flr Apartment
328,000 €
for Sale
Fgura - 3 Bedroom Apartment Fully Finished (On Plan)
440,000 €
Keep default settings X
Use of cookies
This site uses cookies. Our (own) cookies and those of our Partners (third party cookies) are used to offer you a unique experience with us. For this reason, together with our partners, we collect and process non-sensitive information (such as the identifier of your device or the pages you visit).
At any time you can delete, modify or verify the information you share in
Cookie preference
or in our
Cookie Policy
and
Privacy Policy
.
Necessary
Functional
Profiling
Analytics
Accept all
Decline all
Accept selected
Cookie preference