Toggle navigation
(+356) 2164 9500
(+356) 9998 6779
info@sensaramalta.com
Head Office - Sensara Malta
Triq Santa Marija, Safi
09.00 to 19.00 hrs
Monday to Saturday
Home
Properties
Sales
Rentals
Foreign
About us
Services
Contacts
Send your request
Previous
Next
338,000 €
CLICK HERE for DETAILED PHOTOS
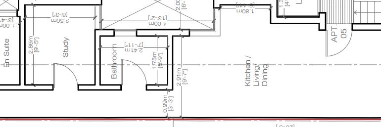
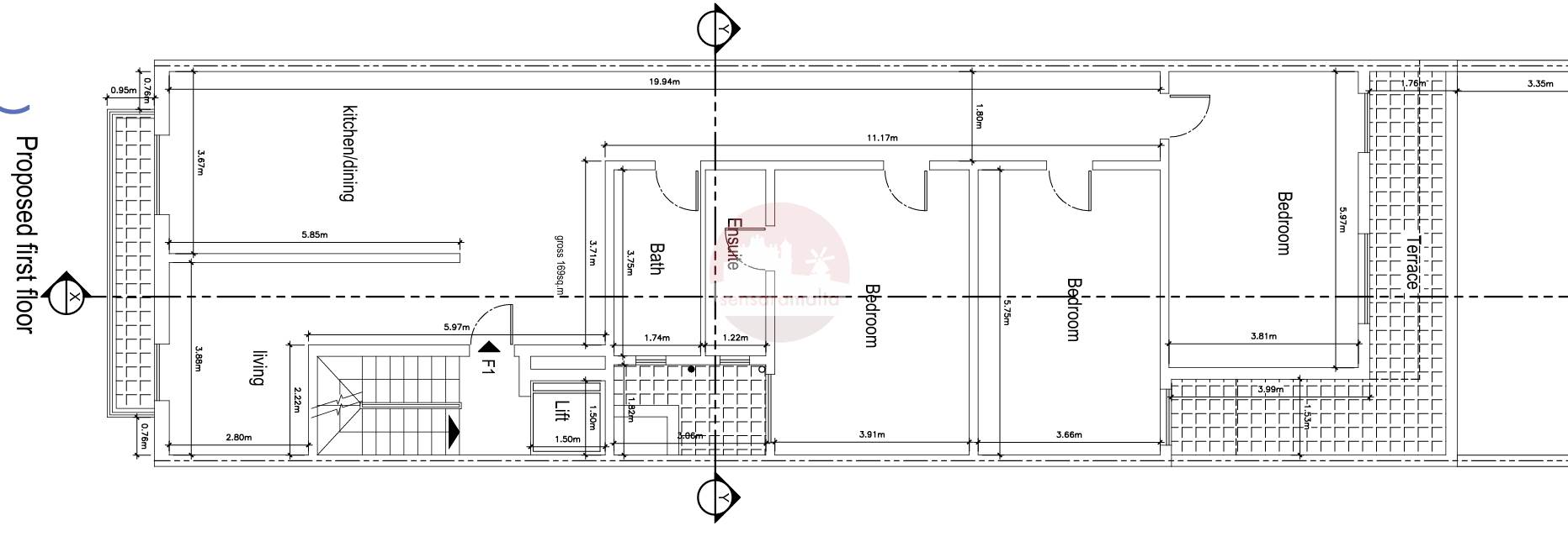
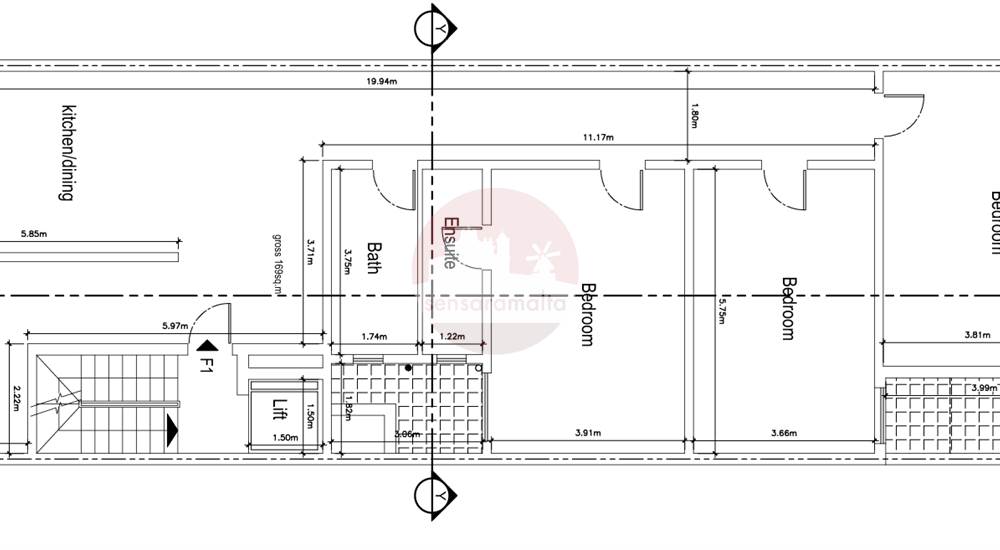
Fgura 169sqm 1st floor 3 bedroom finished apartment with internal yard and terrace On Plan
3+ bedroom apartment for sale • Fgura
Currently on plan , comes this larger then usual 3 double bedroom apartment which is situated on the 1st floor in a small block of only 4 residential units .
The property layout comprises of large open plan overlooking front balcony, main bathroom, 3 double bedrooms of which the main is served with ensuit and internal yard and the other 2 are both served with back terrace .
The property is being offered finished excluding bathrooms and internal doors.
Freehold.
Rooms and Features
Code
V023697
Locality
Fgura
Property type
3+ bedroom apartment
Price
338,000 €
Locals
1
Bedrooms
3
Bathrooms
2
Sqm
169
Balconies
1
Terraces
1
Floor
1
Energetic class
Not applicable
Property Conditions
Next Realization
Accessories:
Double Glazing
Photos • Floorplans • Video
Photos
Options
Print Property sheet
Send property sheet by mail
Schedule a visit
RealEstate Brokers
Schembri Maria Pawla
+356 7732 8183
+356 9998 6779
+356 9998 6775
pawla@sensaramalta.com
Information request
Name *
Phone *
E-mail *
Request Details *
I authorize the processing of my personal data according Regolamento UE n. 679/2016 -
Privacy Policy
I authorize the processing of data for marketing purposes, promotional activities, commercial offers and market surveys.
Send
Share on
We also recommend
for Sale
Rabat - 3 Bedroom Finished Luxurious Apartment + Pool + Terrace + Views
0 €
for Sale
Msida - 3 Bedroom Finished 3rd Floor Apartment On Plan
352,000 €
for Sale
Msida - Luxury 3 Bedroom Apartment
405,000 €
Keep default settings X
Use of cookies
This site uses cookies. Our (own) cookies and those of our Partners (third party cookies) are used to offer you a unique experience with us. For this reason, together with our partners, we collect and process non-sensitive information (such as the identifier of your device or the pages you visit).
At any time you can delete, modify or verify the information you share in
Cookie preference
or in our
Cookie Policy
and
Privacy Policy
.
Necessary
Functional
Profiling
Analytics
Accept all
Decline all
Accept selected
Cookie preference