Toggle navigation
(+356) 2164 9500
(+356) 9998 6779
info@sensaramalta.com
Head Office - Sensara Malta
Triq Santa Marija, Safi
09.00 to 19.00 hrs
Monday to Saturday
Home
Properties
Sales
Rentals
Foreign
About us
Services
Contacts
Send your request
Previous
Next
480,000 €
CLICK HERE for DETAILED PHOTOS
Qormi - 3 Bedroom Penthouse + Terrace + Full roof + Airspace + Optional Garage
Penthouse for sale • Qormi
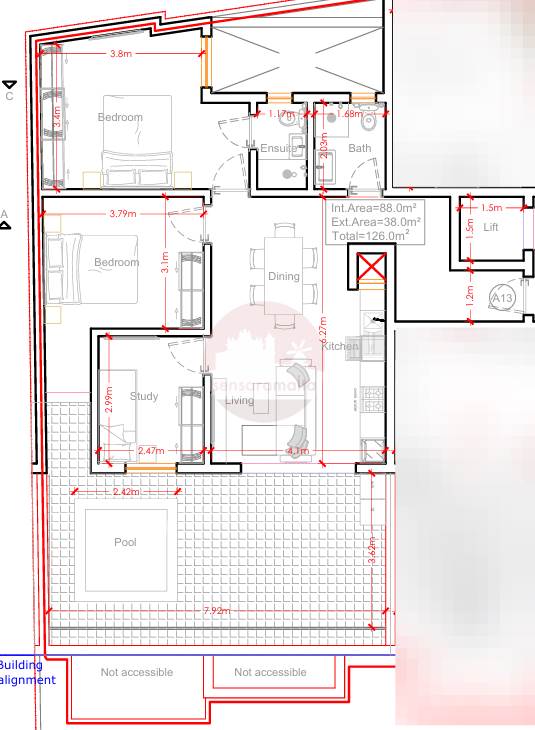
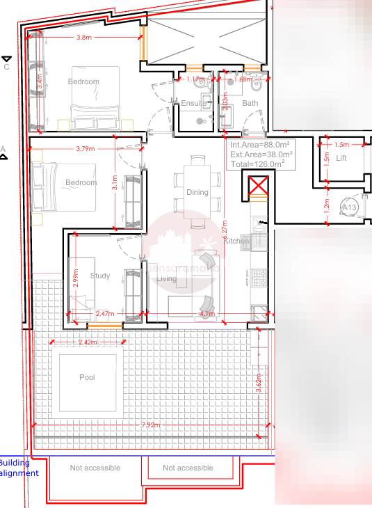
New residential block , currently under contraction comes this 3 bedroom apartment situated on the 4th floor . The property is being offered finished excluding bathrooms and internal doors , plus full roof and airspace.
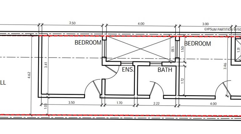
The property layout comprises of an open plan kitchen, living dining room upon entrance overlooking a front terrace wish space for a jacuzzi , 2 double bedrooms main served with ensuit plus a study room.
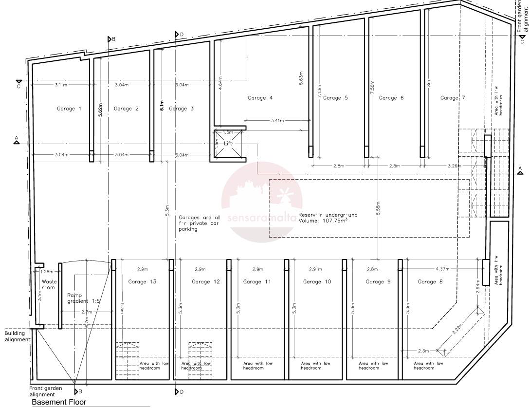
Optional garages are available starting from 58k
Freehold.
Rooms and Features
Code
V023711
Locality
Qormi
Property type
Penthouse
Price
480,000 €
Locals
1
Bedrooms
3
Bathrooms
2
Sqm
129
Terraces
1
Floor
4
Energetic class
Not applicable
Property Conditions
Under Construction
Accessories:
Double Glazing, Veranda
Photos • Floorplans • Video
Photos
Options
Print Property sheet
Send property sheet by mail
Schedule a visit
RealEstate Brokers
Schembri Maria Pawla
+356 7732 8183
+356 9998 6779
+356 9998 6775
pawla@sensaramalta.com
Information request
Name *
Phone *
E-mail *
Request Details *
I authorize the processing of my personal data according Regolamento UE n. 679/2016 -
Privacy Policy
I authorize the processing of data for marketing purposes, promotional activities, commercial offers and market surveys.
Send
Share on
We also recommend
for Sale
Fgura - 2 Bedroom Penthouse
308,000 €
for Sale
St Paul's Bay - Four Bedroom Finished Duplex Penthouse + Views, Ready Built
512,000 €
for Sale
Marsa - 2 Bedroom Penthouse Shell Form, On Plan
262,000 €
Keep default settings X
Use of cookies
This site uses cookies. Our (own) cookies and those of our Partners (third party cookies) are used to offer you a unique experience with us. For this reason, together with our partners, we collect and process non-sensitive information (such as the identifier of your device or the pages you visit).
At any time you can delete, modify or verify the information you share in
Cookie preference
or in our
Cookie Policy
and
Privacy Policy
.
Necessary
Functional
Profiling
Analytics
Accept all
Decline all
Accept selected
Cookie preference