Toggle navigation
(+356) 2164 9500
(+356) 9998 6779
info@sensaramalta.com
Head Office - Sensara Malta
Triq Santa Marija, Safi
09.00 to 19.00 hrs
Monday to Saturday
Home
Properties
Sales
Rentals
Foreign
About us
Services
Contacts
Send your request
Previous
Next
292,000 €
CLICK HERE for DETAILED PHOTOS
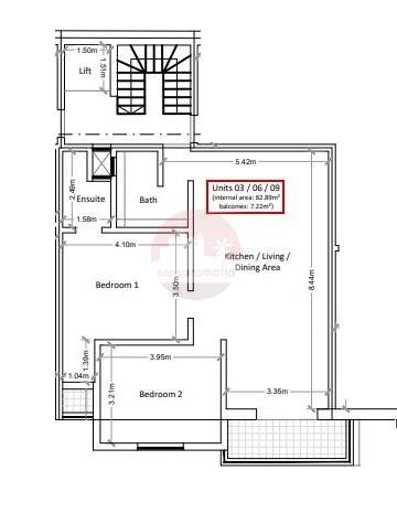
Marsascala - 2 Bedroom Finished Apartment on plan
2 bedroom apartment for sale • Marsascala
In a quiet area of Marsascala, yet close to all amenities comes this First-floor apartment forming part of an exclusive block of just 11 units. This property will be sold finished excluding bathrooms and internal doors.
The layout offers a bright and spacious open-plan kitchen / living / dining area overlooking a front terrace, Main Bathroom, Main Bedroom + en-suite and a second bedroom.
This property is set for completion by mid-2027.
Rooms and Features
Code
V023772
Locality
Marsascala
Property type
2 bedroom apartment
Price
292,000 €
Locals
1
Bedrooms
2
Bathrooms
2
Sqm
90
Balconies
1
Energetic class
Nondescript
Photos • Floorplans • Video
Photos
Options
Print Property sheet
Send property sheet by mail
Schedule a visit
RealEstate Brokers
Tanti Charlene
+356 7934 5923
+356 9998 6779
+356 9998 6775
charlene.tanti@sensaramalta.com
Information request
Name *
Phone *
E-mail *
Request Details *
I authorize the processing of my personal data according Regolamento UE n. 679/2016 -
Privacy Policy
I authorize the processing of data for marketing purposes, promotional activities, commercial offers and market surveys.
Send
Share on
We also recommend
for Sale
Swieqi - 1st Floor Fully Finished 2 Bedroom Apartment + Optional Garage
410,000 €
for Sale
Qawra - 3rd Floor 2 Bedroom Fully Finished Apartment
320,000 €
for Sale
Zabbar - 2 Bedroom Apartment Finished - On Plan
289,000 €
Keep default settings X
Use of cookies
This site uses cookies. Our (own) cookies and those of our Partners (third party cookies) are used to offer you a unique experience with us. For this reason, together with our partners, we collect and process non-sensitive information (such as the identifier of your device or the pages you visit).
At any time you can delete, modify or verify the information you share in
Cookie preference
or in our
Cookie Policy
and
Privacy Policy
.
Necessary
Functional
Profiling
Analytics
Accept all
Decline all
Accept selected
Cookie preference