Toggle navigation
(+356) 2164 9500
(+356) 9998 6779
info@sensaramalta.com
Head Office - Sensara Malta
Triq Santa Marija, Safi
09.00 to 19.00 hrs
Monday to Saturday
Home
Properties
Sales
Rentals
Foreign
About us
Services
Contacts
Send your request
Previous
Next
450,000 €
CLICK HERE for DETAILED PHOTOS
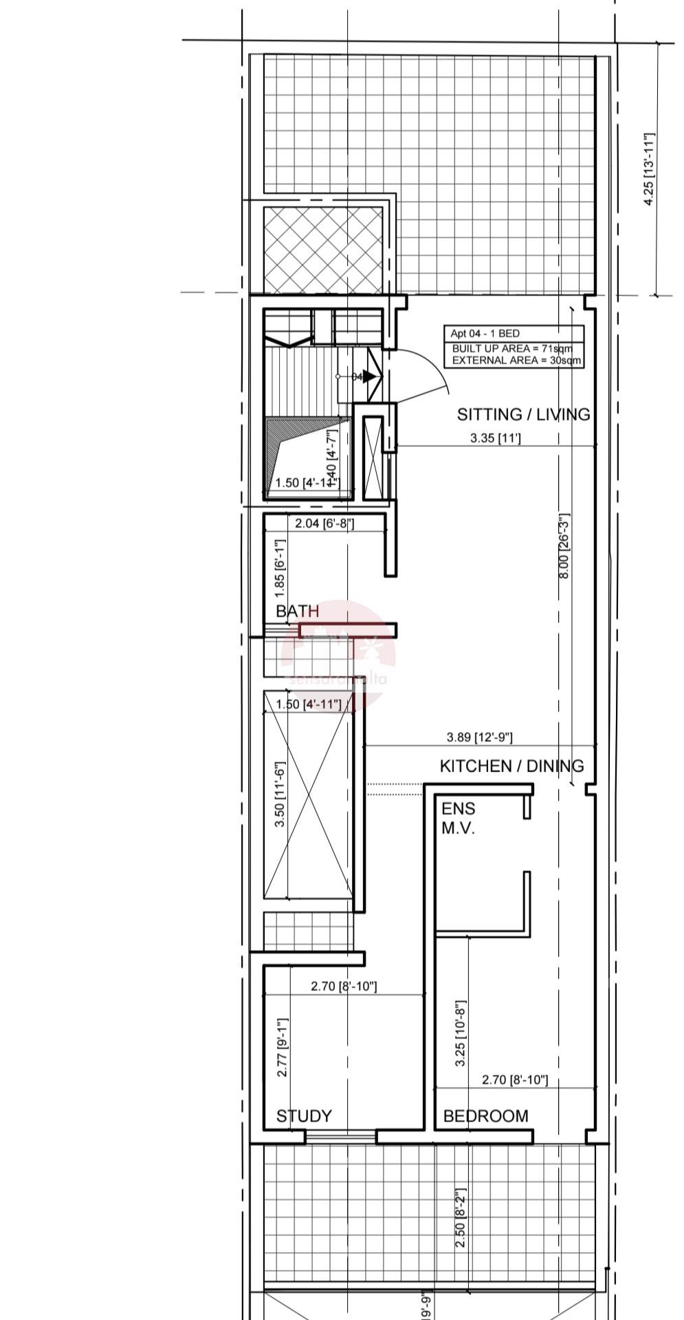
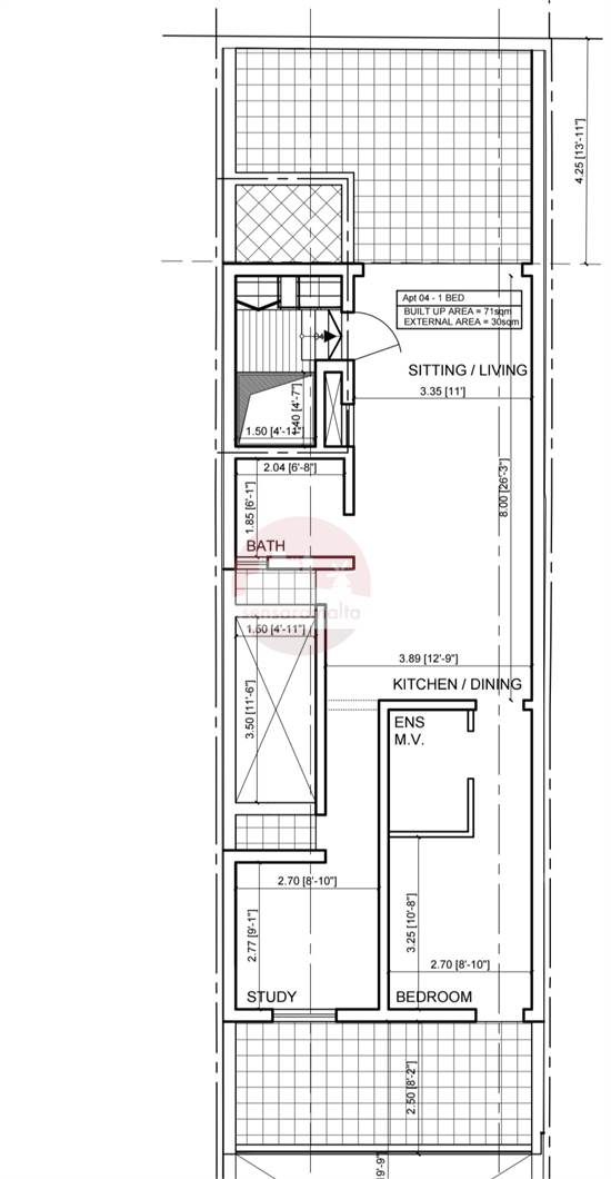
Attard - 1 Bedroom + Study Fully Finished Penthouse (On Plan)
Penthouse for sale • Attard
Presently on plan and set for completion in shell form by September 2026 and fully finished, including bathrooms and internal doors by March of 2027.
This spacious 1 bedroom + study penthouse in Attard presents a rare opportunity in today’s market, located within a small, exclusive block featuring just one unit per floor.
Accommodation includes an open plan kitchen/dining/living with front terrace, one bedroom + study (master with ensuite), main bathroom, and back terrace.
This property stands out for its superior layout and finish—truly a standout option compared to standard new developments in the area.
Rooms and Features
Code
V023776
Locality
Attard
Property type
Penthouse
Price
450,000 €
Locals
1
Bedrooms
2
Bathrooms
1
Sqm
112
Energetic class
Nondescript
Accessories:
Air Conditioning, Elevator, Double Glazing, Solar Panels, Network Data
Photos • Floorplans • Video
Photos
Options
Print Property sheet
Send property sheet by mail
Schedule a visit
RealEstate Brokers
Grima Keith
+356 7902 0587
+356 9998 6775
+356 9998 6779
keith@sensaramalta.com
Information request
Name *
Phone *
E-mail *
Request Details *
I authorize the processing of my personal data according Regolamento UE n. 679/2016 -
Privacy Policy
I authorize the processing of data for marketing purposes, promotional activities, commercial offers and market surveys.
Send
Share on
We also recommend
for Sale
Fgura – Fully Furnished 2 Bedroom Upper Level Apartment
379,000 €
for Sale
Naxxar - 2 Bedroom Penthouse Finished
445,000 €
for Sale
Birkirkara - 2 Bedroom Finished Penthouse + Airspace
450,000 €
Keep default settings X
Use of cookies
This site uses cookies. Our (own) cookies and those of our Partners (third party cookies) are used to offer you a unique experience with us. For this reason, together with our partners, we collect and process non-sensitive information (such as the identifier of your device or the pages you visit).
At any time you can delete, modify or verify the information you share in
Cookie preference
or in our
Cookie Policy
and
Privacy Policy
.
Necessary
Functional
Profiling
Analytics
Accept all
Decline all
Accept selected
Cookie preference