Toggle navigation
(+356) 2164 9500
(+356) 9998 6779
info@sensaramalta.com
Head Office - Sensara Malta
Triq Santa Marija, Safi
09.00 to 19.00 hrs
Monday to Saturday
Home
Properties
Sales
Rentals
Foreign
About us
Services
Contacts
Send your request
Previous
Next
1,330,000 €
CLICK HERE for DETAILED PHOTOS
Marsaxlokk - 4 Double Bedroom Villa on a 470 sqm Plot
Villa for sale • Marsaxlokk
Located in the sought-after area of Tas-Silġ, this impressive villa is set on a generous 470 sqm plot and offers spacious, well-planned accommodation over multiple levels.
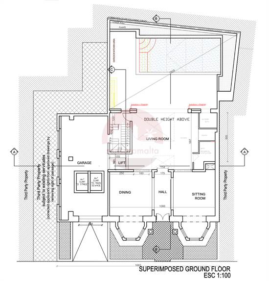
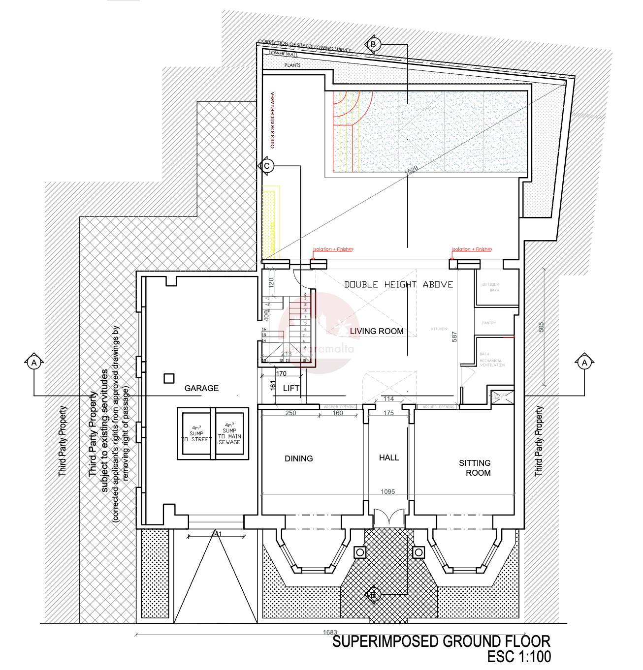
The ground floor features a welcoming dining room and living room, both overlooking the front patio. Further inside, one finds a second living area and a kitchen, both enjoying views of the outdoor space. This level also includes a bathroom, a 6-passenger lift, and a two-car garage.
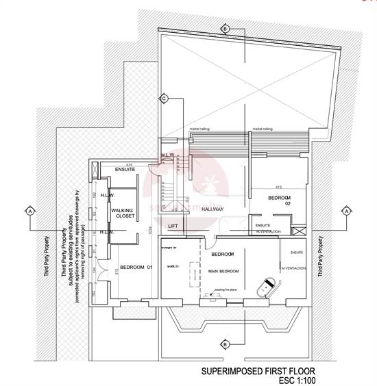
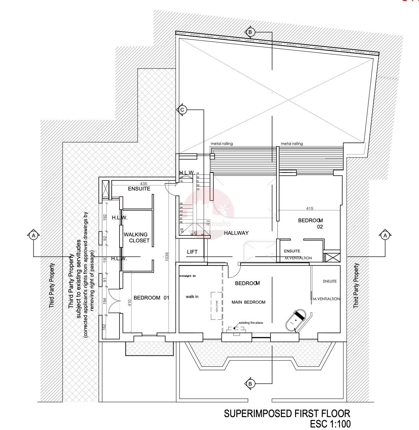
The first floor comprises three double bedrooms, each with a walk-in wardrobe and en-suite bathroom, offering comfort and privacy for the whole family.
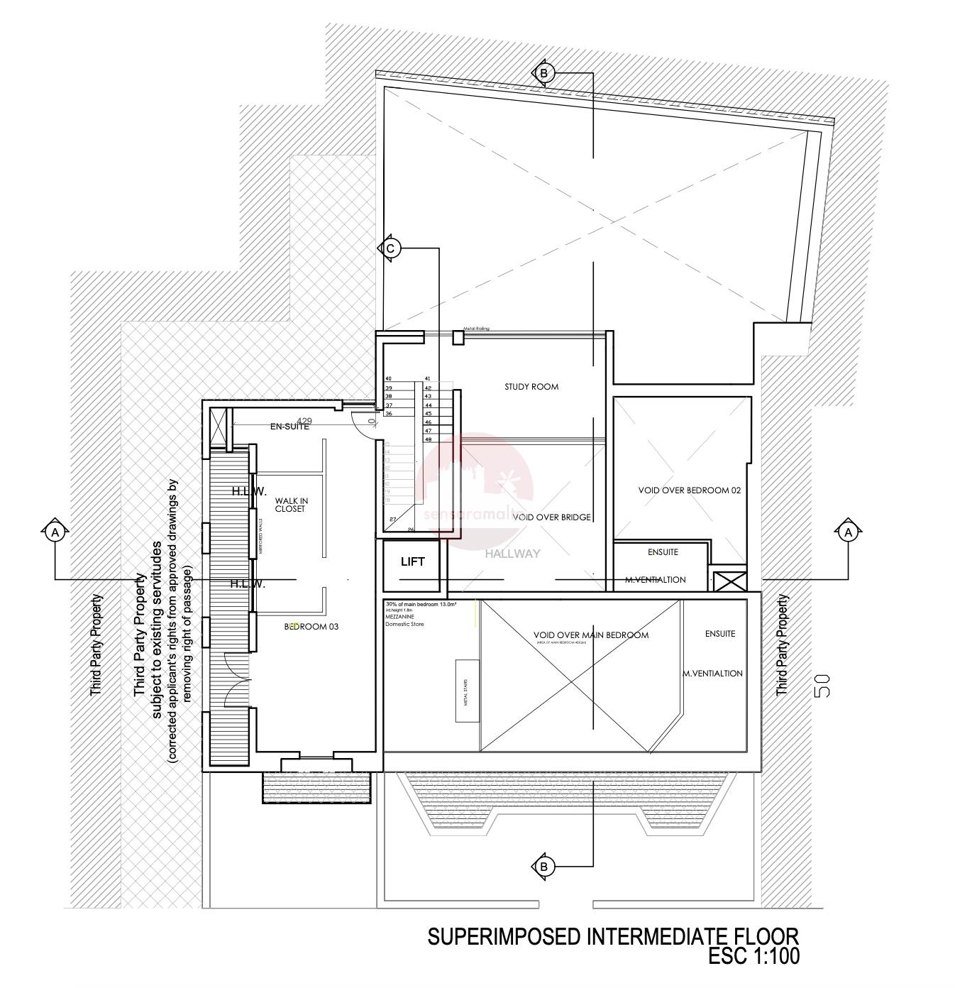
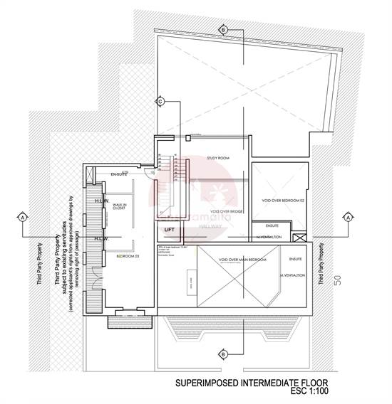
On the second floor, one finds a fourth double bedroom with walk-in wardrobe and en-suite, as well as a study—ideal for a home office or private retreat.
The roof level is designed for relaxation and entertaining, featuring a Jacuzzi area with ample space for outdoor enjoyment.
This property is being offered in shell form, providing the perfect opportunity to customize and finish the villa to your personal taste.
Rooms and Features
Code
V023817
Locality
Marsaxlokk
Property type
Villa
Price
1,330,000 €
Locals
1
Bedrooms
4
Bathrooms
4
Sqm
470
Car places
1
Balconies
4
Energetic class
Nondescript
Photos • Floorplans • Video
Photos
Options
Print Property sheet
Send property sheet by mail
Schedule a visit
RealEstate Brokers
Caruana Dylan
+356 9960 6829
+356 9998 6779
+356 2164 9500
dylan@sensaramalta.com
Information request
Name *
Phone *
E-mail *
Request Details *
I authorize the processing of my personal data according Regolamento UE n. 679/2016 -
Privacy Policy
I authorize the processing of data for marketing purposes, promotional activities, commercial offers and market surveys.
Send
Share on
We also recommend
for Sale
Birzebbugia - Luxurious 5 Bedroom Villa Shell Form + Garage + Garden + Pool
2,950,000 €
for Sale
Mellieha - New Development of Luxury Villas
2,850,000 €
for Sale
Gharb -Brand New Fully Detached Villa+Pool + Views
3,100,000 €
Keep default settings X
Use of cookies
This site uses cookies. Our (own) cookies and those of our Partners (third party cookies) are used to offer you a unique experience with us. For this reason, together with our partners, we collect and process non-sensitive information (such as the identifier of your device or the pages you visit).
At any time you can delete, modify or verify the information you share in
Cookie preference
or in our
Cookie Policy
and
Privacy Policy
.
Necessary
Functional
Profiling
Analytics
Accept all
Decline all
Accept selected
Cookie preference