Toggle navigation
(+356) 2164 9500
(+356) 9998 6779
info@sensaramalta.com
Head Office - Sensara Malta
Triq Santa Marija, Safi
09.00 to 19.00 hrs
Monday to Saturday
Home
Properties
Sales
Rentals
Foreign
About us
Services
Contacts
Send your request
Previous
Next
323,000 €
CLICK HERE for DETAILED PHOTOS
Zebbug – 1 Bedroom Penthouse
Penthouse for sale • Zebbug
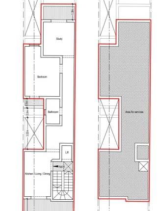
A beautifully designed one bedroom penthouse set in a quiet area of Zebbug, offering a refined lifestyle of comfort and style. A large front terrace provides an inviting outdoor retreat—perfect for relaxing or entertaining.
The property features a spacious bedroom with en-suite facilities and its own balcony, a sleek main bathroom with balcony, and a bright open-plan kitchen, living, and dining area finished to a high standard.
Sold finished excluding bathrooms and doors.
Rooms and Features
Code
V023819
Locality
Zebbug
Property type
Penthouse
Price
323,000 €
Locals
1
Sqm
87
Energetic class
Not applicable
Photos • Floorplans • Video
Photos
Options
Print Property sheet
Send property sheet by mail
Schedule a visit
RealEstate Brokers
Attard Charlene
+356 9996 8105
+356 9998 6779
+356 2164 9500
charlene@sensaramalta.com
Information request
Name *
Phone *
E-mail *
Request Details *
I authorize the processing of my personal data according Regolamento UE n. 679/2016 -
Privacy Policy
I authorize the processing of data for marketing purposes, promotional activities, commercial offers and market surveys.
Send
Share on
We also recommend
for Sale
Fgura - 1 Bedroom + Study Penthouse + Airspace - On Plan - Shell Form
308,000 €
for Sale
Siggiewi - 195sqm 3 Bedroom Finished Penthouse + Roof + Views
717,000 €
for Sale
Tarxien - 2 Bedroom Finished Penthouse + Full Roof + Airspace
277,000 €
Keep default settings X
Use of cookies
This site uses cookies. Our (own) cookies and those of our Partners (third party cookies) are used to offer you a unique experience with us. For this reason, together with our partners, we collect and process non-sensitive information (such as the identifier of your device or the pages you visit).
At any time you can delete, modify or verify the information you share in
Cookie preference
or in our
Cookie Policy
and
Privacy Policy
.
Necessary
Functional
Profiling
Analytics
Accept all
Decline all
Accept selected
Cookie preference