Toggle navigation
(+356) 2164 9500
(+356) 9998 6779
info@sensaramalta.com
Head Office - Sensara Malta
Triq Santa Marija, Safi
09.00 to 19.00 hrs
Monday to Saturday
Home
Properties
Sales
Rentals
Foreign
About us
Services
Contacts
Send your request
Previous
Next
522,500 €
CLICK HERE for DETAILED PHOTOS
B'Kara - Larger than usual 3 bedroom apartment in Shell form
3+ bedroom apartment for sale • Birkirkara
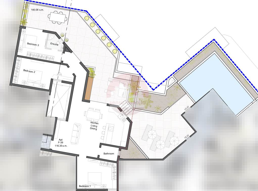
Located in B'Kara, this 4th floor apartment is larger than normal, measuring approximately 256 sqm, of which 140sqm is all outdoor area, ideal for relaxing and hosting!
The layout comprises a welcoming entrance open plan with immediate access to the front terrace, a double bedroom, main bathroom, and another two bedrooms, main with ensuite and access to the front terrace as well.
Optional garages starting from 42K
It is being sold in Shell form with common parts ready finished.
Freehold.
Rooms and Features
Code
V023904
Locality
Birkirkara
Property type
3+ bedroom apartment
Price
522,500 €
Locals
1
Bedrooms
3
Bathrooms
2
Sqm
256
Terraces
1
Floor
4
Energetic class
Not applicable
Photos • Floorplans • Video
Photos
Options
Print Property sheet
Send property sheet by mail
Schedule a visit
RealEstate Brokers
Aguis Lorna
+356 9961 6121
+356 9998 6779
+356 2164 9500
lorna@sensaramalta.com
Information request
Name *
Phone *
E-mail *
Request Details *
I authorize the processing of my personal data according Regolamento UE n. 679/2016 -
Privacy Policy
I authorize the processing of data for marketing purposes, promotional activities, commercial offers and market surveys.
Send
Share on
We also recommend
for Sale
Santa Venera - 3 Bedroom 3rd Floor Apartment
410,000 €
for Sale
Victoria Gozo - Unconverted 3 Bedroom Townhouse in UCA
460,000 €
for Sale
Paola - 3 Bedroom Ground Floor Older Type Apartment - Partly Furnished
399,000 €
Keep default settings X
Use of cookies
This site uses cookies. Our (own) cookies and those of our Partners (third party cookies) are used to offer you a unique experience with us. For this reason, together with our partners, we collect and process non-sensitive information (such as the identifier of your device or the pages you visit).
At any time you can delete, modify or verify the information you share in
Cookie preference
or in our
Cookie Policy
and
Privacy Policy
.
Necessary
Functional
Profiling
Analytics
Accept all
Decline all
Accept selected
Cookie preference