Toggle navigation
(+356) 2164 9500
(+356) 9998 6779
info@sensaramalta.com
Head Office - Sensara Malta
Triq Santa Marija, Safi
09.00 to 19.00 hrs
Monday to Saturday
Home
Properties
Sales
Rentals
Foreign
About us
Services
Contacts
Send your request
Previous
Next
267,000 €
CLICK HERE for DETAILED PHOTOS
Fgura - 2 Bedroom Apartment On Plan
2 bedroom apartment for sale • Fgura
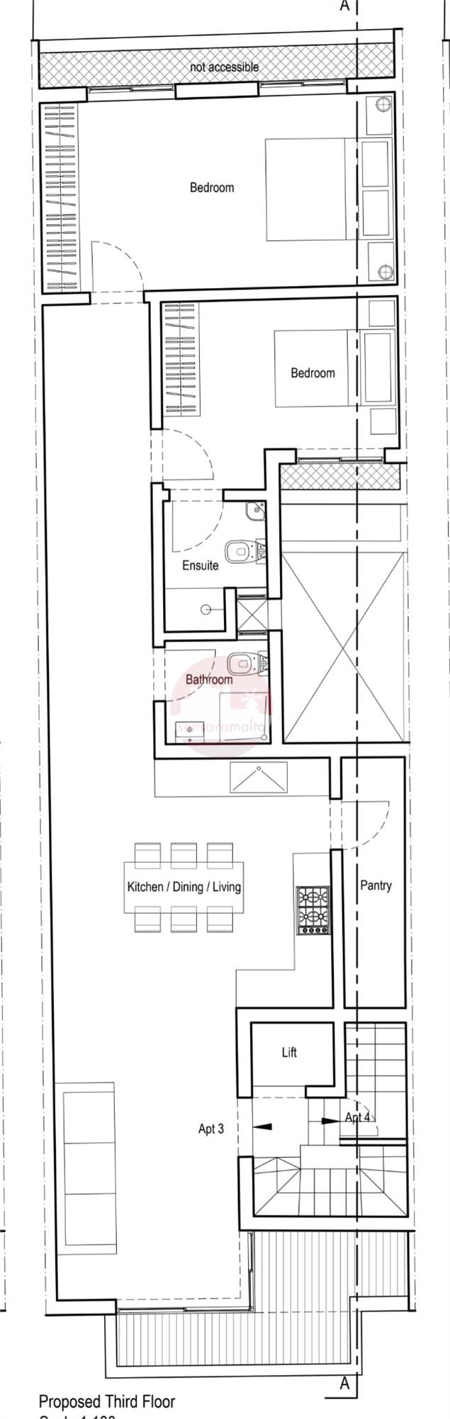
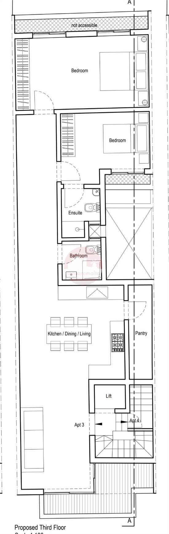
On Plan Fgura 2-bedroom apartment shell.
In Fgura comes a third-floor 2-bedroom apartment served with a lift, currently on plan, estimated to be completed by 2027.
The apartment features an open-plan living and dining area opening onto a balcony, along with two bedrooms, a master and a spare with an ensuite, and an additional main bathroom.
Finishings comes at an extra 25K
Rooms and Features
Code
V023916
Locality
Fgura
Property type
2 bedroom apartment
Price
267,000 €
Locals
1
Bedrooms
2
Bathrooms
2
Sqm
110
Balconies
1
Energetic class
Nondescript
Photos • Floorplans • Video
Photos
Options
Print Property sheet
Send property sheet by mail
Schedule a visit
RealEstate Brokers
Caruana Dylan
+356 9960 6829
+356 9998 6779
+356 2164 9500
dylan@sensaramalta.com
Information request
Name *
Phone *
E-mail *
Request Details *
I authorize the processing of my personal data according Regolamento UE n. 679/2016 -
Privacy Policy
I authorize the processing of data for marketing purposes, promotional activities, commercial offers and market surveys.
Send
Share on
We also recommend
for Sale
Zabbar - 2 Bedroom 3rd Floor Finished Apartment On Plan
312,500 €
for Sale
St Paul's Bay - 2 Bedroom Highly Finished Apt
358,500 €
for Sale
Swatar - 2 Bedroom Finished Second Floor Apartment ON PLAN
362,000 €
Keep default settings X
Use of cookies
This site uses cookies. Our (own) cookies and those of our Partners (third party cookies) are used to offer you a unique experience with us. For this reason, together with our partners, we collect and process non-sensitive information (such as the identifier of your device or the pages you visit).
At any time you can delete, modify or verify the information you share in
Cookie preference
or in our
Cookie Policy
and
Privacy Policy
.
Necessary
Functional
Profiling
Analytics
Accept all
Decline all
Accept selected
Cookie preference