Toggle navigation
(+356) 2164 9500
(+356) 9998 6779
info@sensaramalta.com
Head Office - Sensara Malta
Triq Santa Marija, Safi
09.00 to 19.00 hrs
Monday to Saturday
Home
Properties
Sales
Rentals
Foreign
About us
Services
Contacts
Send your request
Previous
Next
330,000 €
CLICK HERE for DETAILED PHOTOS
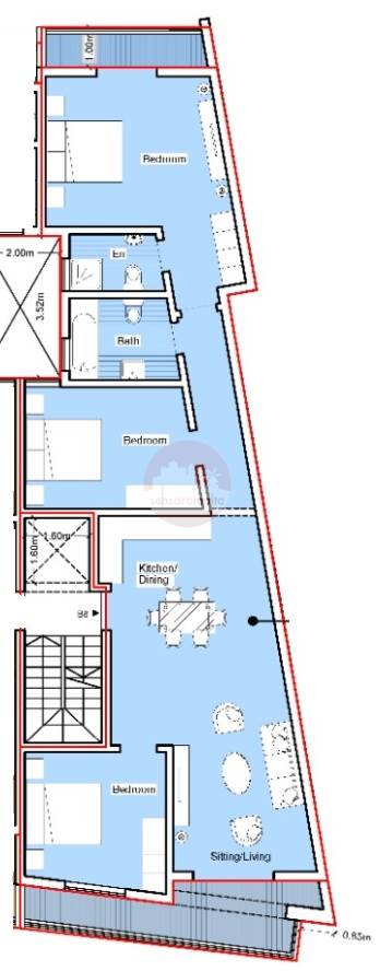
Zabbar - 3 Bedroom 3rd Floor Finished Apartment On Plan
3+ bedroom apartment for sale • Zabbar
Located in Zabbar, three-bedroom third floor apartment, currently available on plan.
The layout comprises of an open plan kitchen/dining/living with a front balcony, main bathroom, and three-double bedrooms. The master bedroom includes an ensuite bathroom and is connected to a balcony.
This apartment is being offered finished excluding bathrooms and internal doors and is estimate to be completed by the end of 2026.
Rooms and Features
Code
V024072
Locality
Zabbar
Property type
3+ bedroom apartment
Price
330,000 €
Locals
1
Bedrooms
3
Bathrooms
2
Sqm
120
Balconies
2
Floor
3
Energetic class
Nondescript
Photos • Floorplans • Video
Photos
Options
Print Property sheet
Send property sheet by mail
Schedule a visit
RealEstate Brokers
Grima Marthese
+356 7929 1233
+356 9998 6779
+356 9998 6775
marthese@sensaramalta.com
Grima Vince
+356 9940 5538
+356 9998 6779
+356 2164 9500
vince@sensaramalta.com
Information request
Name *
Phone *
E-mail *
Request Details *
I authorize the processing of my personal data according Regolamento UE n. 679/2016 -
Privacy Policy
I authorize the processing of data for marketing purposes, promotional activities, commercial offers and market surveys.
Send
Share on
We also recommend
for Sale
Gozo Ghajnsielem: 3 bedroom LARGE/PARTLY FURNISHED
380,000 €
for Sale
Luqa - 2nd Floor 3 bedroom Apartment - Finished
500,000 €
for Sale
Fgura 169sqm 2nd floor 3 bedroom finished apartment On Plan
338,000 €
Keep default settings X
Use of cookies
This site uses cookies. Our (own) cookies and those of our Partners (third party cookies) are used to offer you a unique experience with us. For this reason, together with our partners, we collect and process non-sensitive information (such as the identifier of your device or the pages you visit).
At any time you can delete, modify or verify the information you share in
Cookie preference
or in our
Cookie Policy
and
Privacy Policy
.
Necessary
Functional
Profiling
Analytics
Accept all
Decline all
Accept selected
Cookie preference